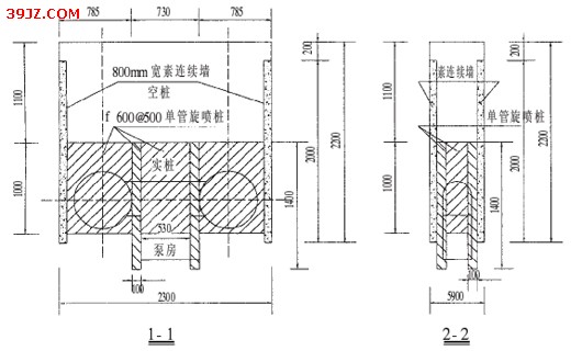
地铁联络通道旋喷桩与素混凝土墙组合加固施工工艺 摘要:介绍在软弱地质条件下采用旋喷桩、素混凝土墙组合加固为常压开仓检查刀具换刀和开挖联络通道提供条件的加固施工方法,为同类施工提供参考经验。 关键词:联络通道;软土地层;深层旋喷桩;素混凝土墙;开仓换刀 1概述 地铁联络通道对于整个地铁工程来说,虽微乎其微但又不可缺少,故常被人们所忽视而容易造成事故,如2003年7月上海轨道交通4号线越江隧道联络通道因大量流砂涌入,引起隧道受损及周边地区地面沉降,直接经济损失高达1.5亿元[1],还有不少工程在联络通道开挖中因技术上的失误而造成了重大的损失。现结合实践经验简要介绍旋喷桩结合素混凝土墙加固的施工工艺,它适用于加固软弱土层等,通过地面深层旋喷桩加固,对开挖段进行土体加固,使土体达到要求的防水性和加固强度,然后进行联络通道施工,在加固位置同时考虑为盾构机提供常压开舱条件,检查刀具,如有需要可进行开舱换刀作业。 2工程概况 深圳市地铁2号线工程某标段1#联络通道,设道位置左右线隧道净距为7.3m,地面为沥青混凝土道路,联络通道设计含废水泵房和检修井,同时考虑为盾构机提供常压开舱条件,可检查刀具并视其磨损程度进行常压开舱换刀作业,同时根据土层对刀具及刀盘的磨损情况确定是否需要再次换刀。 场地原始地貌为滨海相潮间带(滩涂),场地经过软基处理由填海而成,地表为城市道路,洞身范围为淤泥质粘土层、强透水性的砾砂层,需进行加固才能满足常压开舱及联络通道施工条件。
3加固施工工艺
深层旋喷桩法组合素混凝土墙加固后开仓换刀、开挖联络通道的施工工艺,大致分为土体加固、开仓换刀、联络通道开挖构筑施工等3个阶段,本文重点介绍土体加固施工工艺。1#联络通道加固施工平、剖面如图1所示。
3.1素连续墙施工工艺流程(如图2)及要点
①导墙施工
导墙的形式为"┓┏"型,如图3,导墙高1.5m,面板厚200mm、长700mm,垂直段厚200mm、高1.3m。首先按地下连续墙轴线位置放线放坡和开挖土方,基底回填粘土100~150mm并铺平夯实,然后绑扎导墙立面钢筋、立模、浇筑导墙混凝土,待其达到强度值后拆模并设内撑和回填夯实,再绑扎导墙面板钢筋、立模、浇捣混凝土;导墙内外回填粘土并夯实。当导墙混凝土强度达设计值的75%即可进行成槽施工。
②泥浆的制备和使用
&nb[1][2][3]下一页
[NextPage]
$False$



