【摘要】南京长江二桥北汊大桥主桥墩基础承台为深水高桩大体积混凝土承台施工,位处长江北汊主河槽,采用单壁钢吊箱围堰进行设计施工,速度快,质量优,效益好。
【关键词】南京长江二桥 北汊大桥 主桥墩承台 钢吊箱 设计 施工
一、工程概况
北汊大桥为预应力连续箱梁桥,全长2172m,主桥为90m+3*165m+90m三跨变截面预应力连续箱梁桥,主跨目前在同类桥梁中亦居国内第一。
北汊桥22号(23号)主桥墩基础采用18根φ2.50m的钻孔灌注桩,横桥向6排,纵桥向3排成矩形布置,纵间跨为5.0m,横间距除桥轴线一排为6.40m外,其余均为5.0m,桩长(承台以下)70.0m。承台设计为高桩承台,承台尺寸为30.42m(长)*
14.00m宽)*3.50m(高),承台顶面标高-0.50m,底面标高一4.00m。受基础桩影响,桥位处河床断面标高为
-9.00~-14.00m,为此,承台施工采用钢吊箱围堰的方法施工。
二、钢吊箱设计
用吊箱围堰是为承台施工而设计的临时阻水结构,其作用是通过吊箱围堰侧板和底板上的封底混凝土围水,为承台施工提供无水的干处施工环境。
1.设计条件
(1)工况条件
根据钢吊箱围堰施工作业时段,设计受力状态可按以下几个工况进行分析:
①拼装下沉阶段;
②封底混凝土施工阶段;
③抽水后承台施工阶段。
(2)水位条件
南京河段距入海口约450km,位于长江下游感潮区内,非正规半日潮型,流量以雨水经流为主,同时受潮汐影响,每年5~10月为洪汛期,11月至次年单月为枯水期,洪峰出现在6~8月份。根据南京下关水文站统计多年水位资料推算本桥桥址潮位特征如表1。
由表1可以看出:桥址多年平均潮最高为6月份5.54m,平均潮最低为1月份1.28m,而根据吊箱施工时间安排,吊箱围堰抽水将在3月份以后进行,此地平均潮位为3月份3.18m,基于此,我们确定钢吊箱设计抽水潮位为+4.00m,以此潮位条件控制钢吊箱设计。
(3)结构设计条件
综合各工况条件,潮位条件确定钢吊箱结构设计条件:
围堰平面内净尺寸:30.42m*14.00m(与承台平面尺寸相同,考虑吊箱围堰侧板兼做承台模板);
侧板顶面设计标高+5.00m;
底板顶面设计标高-5.70m;
侧板高10.70m;
底层内支撑标高±0.00m(承台高度范围内无支撑);
设计抽水潮位+4.00m。
2.设计依据
(1)《南京长江第二大桥北汊桥第三阶段施工图设计》;
(2)《公路桥涵设计通用规范》(JTJ021-89);
(3)《公路桥涵钢结构及木结构设计规范》(JTJ025-86);
(4)《钢结构设计手册》(GB17-88版);
3.钢吊箱构造简介
(1)构造形式选择
由钢吊箱使用功能,将其分为侧板、底板、内支撑、支吊系统四大部分。其中侧板、底板是吊箱围堰的主要阻水结构,根据钢吊箱设计条件,我们对吊箱侧板结构的单壁、双壁两种方案进行了比较,比较结果见表2内容。
由表2可以看出,侧板单壁节省材料,加工方便,质量容易控制,节省模板资金,下沉时间短,尽管需用大型起吊设备,但时间较短(两个吊箱共需5~7d时间),综合考虑,优点优于双壁结构,故侧板选用单壁结构。
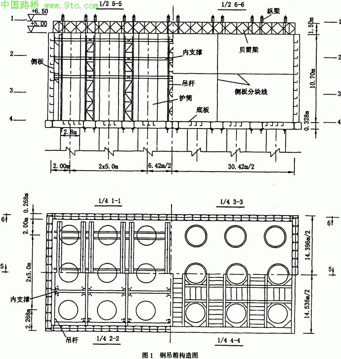
(2)结构构造简介(见图1)
①底板
吊箱底板为井字梁结构,由型钢梁和δ=8mm钢板焊接而成。底板平面尺寸为30.956m*14.536m,底板高0.328m,重量为49.47t。桩间设置纵、横。
[32al字钢梁,纵梁(顺桥向)为主梁,除中梁因间距大、承载重设置3[32a工字钢外,其余均为2[32a工字钢,两端各设置2[32a槽钢。横梁(顺水方向)为次梁,中梁各设置2[32a槽钢。纵、横梁之间设置的斜撑(除端部吊杆梁外)为[16槽钢。纵、横梁之间设置[75*50*6角钢加劲肋。吊杆梁设焊在纵梁(端吊杆梁除外)上为2[32a槽钢。顶板为δ=8mm钢板,顶板与18根钢护筒相交平面位置各留有直径为3.064m圆孔洞,以利于下沉吊箱。
②侧板
侧板采用单壁结构,由型钢和8mm厚钢板焊制而成。侧板高度方向分为下、上两层,各层高度分别为6.20m和4.50m。每层分为10块,其中长边方向各3块,短边方向各2块。两层共计20块。下层长边侧板分块尺寸为10.135m*6.20m,每块重量为
8.55t,短边分块尺寸为 7.181m*6.20m,每块重 6.51t,下层侧板总重 77.34t;上层长边侧板分块尺寸为
10.135m*4.50m,每块重4.62t,短边分块尺寸为7.181m*4.50m,每块重3.32t,上层侧板总重41.00t;上、下两层侧板总重124.56t。分块的原则主要是便于加工及运输,避免产生超标变形。吊箱下层侧板与底板及上、下层侧板之间的水平缝和竖缝均采用螺栓连接,缝间设置10mm(压缩后为3~4mm)泡沫橡胶垫以防漏水。下层侧板的竖楞(接缝角钢除外)均为[25a工字钢,间距为640mm;上层侧板的竖楞为[12工字钢,间距与下层侧板相同。侧板的水平加劲肋为(接缝角钢除外)[75*50*6角钢,间跨450~750mm,随水深而变化。面板为8mm钢板。侧板的作用是与底板(包括封底混凝土)共同组成阻水结构,变承台及部分墩身水上施工为陆上施工,另一用途是兼作承台施工的外模板。
③吊箱内支撑
内支撑由内圈梁、水平支撑柱及竖向支撑柱三部分组成:
内圈梁:内圈梁分为上、中、下三层,设在吊箱侧板内侧,高程分别为+4.40m,+2.00m,±0.00m。分别为2[14、2[36a和4[45b工字钢,内圈梁的作用主要是承受侧板传递的荷载,并将其传给水平支撑柱。另一用途作为拼装侧板的靠模。除下层内圈梁与侧板之间采用连接焊缝焊接外,其余均采用间断焊接;圈梁与水平钢管支撑柱之间采用连续焊缝焊接。水平钢管支撑柱:分为上、中、下三层,分别支撑在三层内圈梁上,承受圈梁传递的荷载。分别为φ203mm*8mm,φ245mm*8mm和φ299mm*10mm钢管;水平钢管支撑柱纵、横方向交叉设置,纵向(顺桥向)为通长钢管,纵、横向水平钢管支撑柱相交处用支撑连接件连接。竖向支撑柱:竖向支撑柱分为中支撑柱和边支撑柱。中支撑柱为桁架结构,立杆为4L100*100*10角钢,水平杆及斜杆均为L75*50*6角钢。边支撑柱竖杆为2[18工字钢,承重水平杆为[16a槽钢(支承钢管的),非承重水平杆及斜杆均为L75*50*6角钢,牛腿水平杆及斜杆均为[18工字钢。竖向支撑柱的作用主要是支撑水平支撑柱及内圈梁。竖向支撑柱底端焊接到底板上,上端分别与上、中、下三层水平钢管支撑柱的连接件焊接。
④吊箱支吊系统
支吊系统由纵、横梁、吊杆及钢护筒组成。支吊系统的作用是承担吊箱自重及封底混凝土的重量。
横梁:横(顺水方向)梁,共计三排,分别设在钢护筒顶上,每排横梁由两片贝雷组成。贝雷横梁支点设专用支座(牛腿)焊接于护筒内侧,采用U型螺栓将贝雷固定在钢护筒内侧的专用支座(牛腿)上。贝雷横梁的作用是支承纵梁,并将纵梁传递的荷载(通过护筒)传给基桩。
纵梁:纵(顺桥向)梁设置在贝雷横梁上,共12排,每排由2[56b工字钢(搭设工作平台用过的)组成。纵梁的作用是支承吊杆,并将吊杆荷载传给贝雷横梁。
吊杆:吊杆由φ32mm精轧螺纹粗钢筋及与之配套的连接器、螺帽等组成,每个吊箱72根吊杆,重量6.5t。吊杆下端固定到底板的吊杆梁上,上端固定到支架的纵梁上。吊杆的作用是将吊箱自重及封底混凝土的重量传给支架纵梁。
⑤下沉吊点系统
吊点系统供300t浮吊船安装吊箱入水时使用。吊点设在吊箱底层长边侧板内侧内圈梁处,每个吊箱设4个吊点,吊点中心相距15.25m,每个吊点设两块厚度δ=40mm吊耳板、一根直径φ115mm承重销和4[28a加强带。两块耳板中心相距640mm,焊于侧板及内圈梁上,并用加劲板加强,耳板上设直径φll8mm的圆孔,供安装承销使用,4根加强吊带呈双
"人'字开布置,焊于侧板外侧竖楞([25a)上。安装吊箱时,将一根长吊索(钢丝绳)分别挂于300t浮吊船的主钩及吊箱一侧的2个吊点上,将2根短吊索分别挂于对价浮吊船的2个副构及吊箱另一侧的2个吊点上。
③吊箱定位系统
钢吊箱下沉入水后受流水压力的作用,吊箱围堰会向下游漂移,为便于及时调整吊箱位置,确保顺利下沉,我们在钢吊箱围堰上设定位系统。定位系统由导向钢板、定位孔、定位器(短型钢)及调位千斤顶组成。导向板为厚度δ=16mm钢板,端部制成圆弧,分别焊于吊箱4个角部位的纵、横内圈梁上,导向板端部至钢护筒外壁之间留一定的空隙;定位孔是利用吊箱底板上靠上游的前排3个护筒孔洞作为定位孔,其位置必须和护筒-5.70m处位置保持一致;导向钢板及定位孔的作用是控制下沉吊箱的平面位置。调位时用调位千斤顶进行。定位是在吊箱下沉到位后,封底混凝土凝固前,为防止水流压力、波浪力及靠船力等动荷载对自由悬挂的钢吊箱发生挠动,影响封底混凝土质量而设置固定装置。定位主要利用钢护筒的稳定性将下沉到位的钢吊箱通过定位器与4个角的钢护筒连成整体达到钢吊箱的定位。
4.设计计算
根据钢吊箱围堰施工时段分析进行结构设计验算。限于篇幅,在此仅就计算思路简单介绍,具体计算过程从略。
(1)荷载取值依据
由《公路桥涵设计通用规范》(JTJ021-89)荷载组合V考虑钢吊箱围堰设计荷载组合。
水平荷载:∑Hj=静水压力+流水压力+风力+其他;
竖直荷载:∑Gj=吊箱自重+封底混凝土重+浮力+其他;
其中:单位面积上的静水压力按10kN/平方米 计,水压随高度按线性分布;
流水压力按桥址断面设计流速:V设=1.00m/s;
风速取设计风速: V风=2.50m/s;
封底混凝土容重:γ=24kN/立方米;
水的浮力γw=10kN/立方米。
(2)计算内容
①吊箱拼装(包括滑移入水、浮运)下沉计算;
②吊箱结构设计计算;
③封底混凝土施工阶段计算;
④抽水后吊箱止浮计算。
(3)计算
综合工况条件分析和计算内容,对钢吊箱各部分取最不利受力工况进行计算:
①底板主要承受封底混凝土重量和吊箱自重。底板受力以竖向荷载为主,其最不利受力工况应为封底混凝土浇注阶段,此时底板受力荷载组合取封底混凝土重+吊箱自重+浮力进行验算。此外还要对首节吊箱滑移入水及整体起吊下沉等阶段底板受力情况进行复算。
②侧板以承受水平荷载为主,其最不利受力工况为抽水阶段,取此工况受力荷载组合进行侧板计算。侧板计算包括楞、水平加劲肋、面板、接缝螺栓及侧板焊缝等物件的内力、变形及应力计算。另外,还要对吊箱滑移入水、整体起吊下沉、吊箱混凝土封底及承台施工等阶段侧板受力情况进行复算,进行多重控制设计。
③内支撑系统与吊箱侧板计算相关,所以在侧板验算的同时完成内支撑的验算。
④吊箱支吊系统和底板一样,以承受竖向荷载为主,受力验算亦与底板计算一起完成。
⑤吊箱滑移入水阶段除验算吊箱底板及侧板外,还要通过计算结果确定滑移设备,并对不良地基进行加固处理。
③吊箱浮运主要与流水压力、风力、波浪及靠船力等因素有关,同样以水平荷载为主,设计计算以此几种荷载组合为最不利的情况下进行计算控制。并且还要对吊箱浮运稳定性进行验算。
⑦吊箱拼装下沉阶段主要与吊箱自重有关,以竖向荷载为主,以整体起吊下沉为最不利进行计算控制,并以据计算结果设计吊点、吊具,选择安装设备。
⑧抗浮计算分两个阶段:一个阶段是吊箱内抽完水后浇筑承台混凝土前,另一个阶段是浇筑完承台混凝土后承台混凝土初凝前;分别计算封底混凝土与钢护筒间粘结力及吊箱围堰的上浮力,使其满足下式要求:
⑨封底混凝土强度验算:封底混凝土主要承受吊箱、封底混凝土、承台混凝土的自重和浮力,以竖向荷载为主。验算分两阶段进行,阶段划分同抗浮计算,选取最不利荷载组合进行控制,验算封底混凝土周边悬臂时之拉应力和剪应力,以及中间混凝土之拉应力和剪应力。
三、施工工艺流程
施工工艺流程见图2。

四、钢吊箱施工
22号(23号)主墩承台施工钢吊箱围堰结构尺寸大、自重大,目前在单壁钢吊箱中位居国内第一,受加工、运输和现场环境制约,造成施工环节多、施工难度高。针对现场实际,在完善结构设计、工艺设计的同时,我们对钢吊箱的施工采用了灵活多变的施工方法,取得了显著成效。
1.钢吊箱加工
以钢吊箱的结构构造看,底板、侧板是吊箱加工的主要部分,而内支撑、支吊系统多以标准件为主,加工量较小。根据施工组织要求,吊箱要提前进行设计和加工。吊箱加工场地选在桥址上游江边的修船厂,厂内有加工车间,距江边150m,江边并有简易修船船台可供利用。底板加工在简易船台滑道上进行,加工前在船台滑道搭设加工平台,在平台上加工底板,底板加工首先将整个底板的纵、横型钢梁焊成井字梁,然后在井字梁顶面焊接δ=8mm钢板;为了便于吊箱浮运,底板上护筒及吊杆的孔洞暂不开孔;底板平面尺寸30.956m*14.536m,高度为0.328m,重量(未开孔时)为57.80t,因块件较大,加工时按程序分区焊接,防止超标变形;底板加工完后直接在其上面拼装底层内支撑系统及底层侧板。侧板加工在加工车间前面的混凝土地面的场地上进行,加工前在地面上用型钢及钢板搭设加工平台,在平台上加工侧板,加工时严格按施工图分块尺寸进行加工,为防焊接时翘曲变形,采用型钢梁、定位卡及螺旋千斤顶均匀施压焊接;侧板加工完试拼检验合格后,分块装车(或装船)运至拼装现场。内支撑系统的竖向支撑柱及连接件均在加工车间内加工,内圈梁及水平支撑
钢管均购买成品。吊箱支吊系统的贝雷梁、工字钢梁均为钻孔施工平台旧料,吊杆为φ32mm精轧螺纹粗钢筋购买成品。现场拼装时直接调用。吊相加工质量以《钢模板质量标准》为依据。为保证加工质量,制定了严格的加工工艺规程和质量体系。
2.吊箱拼装及下沉
吊箱拼装及下沉均分两次进行。吊箱底板、底层侧板及底层内支撑加工完后,即可在加工场地的船台的滑道上拼装底层钢吊箱,并安设滑移设备,拼装完毕,起动滑移设备将底层吊箱滑移入水,并用1200马力拖轮顶推浮运至桥位,然后用300t浮吊船安装下沉。底层吊箱下沉到预定位置后,安装支吊系统并将吊箱悬挂其上(300t浮吊移位至另一个墩位,准备
下沉另一个钢吊箱,随后利用50t浮吊拼装中、上层内支撑及上层侧板,拼装完后,待另一个底层吊箱下沉完后,300t浮吊移来再下沉整体吊箱至设计高程。使用一套设备安装下沉两个钢吊箱,先、后穿插施工。
3.吊箱定位与堵漏
吊箱沉至设计高程后,复核其平面位置,如不满足要求,可将千斤顶安放在四个角的4个护筒外壁与吊箱侧板之间调整吊箱位置,待其满足要求后,在四个角的4个护筒与吊箱侧板之间用定位器(短型钢)焊接定位。然后潜水员下水,将底板堵漏封板紧固到护筒上。每个护筒孔洞堵漏封板由4块弧形钢板用螺栓拼成一个环形板,下沉吊箱前,将封板初步安设在底板护筒洞口周围,此时封板的内径应大于底板洞口直径以利于吊箱下沉。
4.灌注封底混凝土
封底混凝土的作用一是作平衡重的主体,二是防水渗漏,三是抵抗水浮力在吊箱底部形成的弯曲应力;四是作为承台的承重底模。封底混凝土灌注是吊箱围堰施工成败的一大关键。主要难点是水下混凝土灌注面积大,而且水位深,在吊箱混凝土封底中,采用单根导管的灌注方式,无法达到设想的效果,而混凝土随时可能被水冲刷稀释而解散,质量难以保证。针对这些问题,施工中我们采取了以下几点措施:
①吊箱下沉前,用自行研制的大型圆筒形钢丝刷清除封底混凝土高度范围护筒表面氧化层及附着物,确保封底混凝土与钢护筒间粘结力;
②提高封底混凝土坍落度及强度级别,将混凝土坍落度控制在18~20cm;并将原设计C25混凝土按C50配制,另外掺加粉煤灰和高效缓凝型减水剂,提高混凝土的流动性和延长混凝土的初凝时间;
③封底采用泵送混凝土法多点快速灌注,整个封底利用3排(每排4根)12根导管,根据计算首盘混凝土方量,加工大型储料斗,按水下混凝土灌注方法进行封底施工;根据现场实际情况,为方便施工,混凝土灌注采用从下游端开始依次倒移向上游前进施工;
④为了防止封底时吊箱内水位高于箱外水位,可预先在吊箱上节侧板(箱外水位处)开孔,封底时排出箱内封底混凝土置换出的水量。吊箱内抽水时,用钢板封焊堵孔。
5.灌注承台混凝土
封底完毕五天后,抽干吊箱内积水后,发现混凝土表面比较平整无渗漏现象效果很佳,然后拆除吊杆梁、割除钢护筒、吊杆及底层水平内支撑钢管以下的竖向支撑柱,清除高出承台面的封底混凝土。然后按传统的方法安设承台钢筋(包括预埋墩身钢筋及其他预埋件),灌注承台混凝土。
结束语
南京长江二桥北汊大桥主桥墩基础承台为深水高桩大体积矩形承台,施工难度大,结合实际情况,施工采用单壁铜吊箱围堰进行设计施工,取得了显著效果。
①速度快:2个钢吊箱围堰从1998年11月20日开始加工,至1999年2月26日下沉到位,并封底成功,仅用3个月的时间。
②质量优:因吊箱围堰结构设计合理,定位准确,仅1.70m厚的封底混凝土抽水后无渗漏现象,且封底混凝土表面比较平整,无泥砂,封底混凝土质量好。
③效益好:因单壁铜吊箱结构设计合理,节约了数十吨钢材。加之吊箱侧板又兼做承台施工模板,节省了模板费用。合计节约资金100多万元。
参考文献
[1]公路桥涵设计通用规范(JTJ021-89)
[2]公路桥涵钢结构及木结构设计规范(JTJ025-86)
[3]钢结构设计手册(GB17-88版)
[4]公路桥涵施工技术规范(JTJ041-89)
[5]刘成宇主编.土力学和基础工程(下册).北京:中国铁道出版社,1981
[6]建设结构静力计算手册编写组.建筑结构力计算手册.北京:中国建筑工业出版社,1975.6



