【摘要】本文介绍了利用深水基础钢吊箱技术施工水中系梁及接柱的施工技术,用小型的吊箱仅将单根基桩套住,系梁是预制的,被固定在小吊箱之间,与小吊箱同时下沉至设计位置,然后按有底钢吊箱施工技术浇筑系梁及接住。
【关键词】桥梁 施工 钢吊箱
一、工程概况
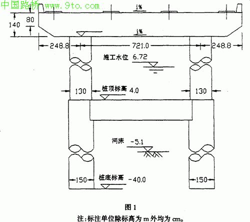
大沙河桥是江苏沂淮高速公路沐阳段上的一座大桥,跨径布置为6m*20m,上部是先简支后连续的预制组合箱梁,下部为圆柱墩,直径为1.2m,基础为钻孔灌注拉,直径1.5m。第2,3号桩桩顶设系梁,系梁处于水下,桩柱及系梁结构如图1所示。本工程下部施工的难点在于2,3号桩的水中系梁及桩顶接柱。施工期间系梁底处于水深约5m处,离河床底约7m。

二、方案确定
由于河流通航,首先否定了大围堰施工方案。后参考深水基础之高桩承台的钢吊箱施工方法,制定了有底钢吊箱方案,将两根桩柱和系梁同时套在一个吊箱内,先浇筑封底混凝土,再抽水施工系梁和接柱。本方案可行性大,但考虑到系梁仅7立方米混凝土,综合成本较大,故未采用。最终采用的方案为小吊箱方案,特制的圆形小吊箱仅将单根桩柱套住,而系梁是预制的,被固定在两个小吊箱之间,与小吊箱同时下沉至设计位置,然后按有底钢吊箱法施工接柱。该方法吊箱轻,成本低,方法简单易行,实际应用得到了成功。
三、施工过程
1.钻孔灌注桩施工
先搭设钢便桥至桩位,然后搭设钻孔平台,沉放钢护筒,钻机在钢平台上进行钻孔成桩。
2.小吊箱制作
小吊箱侧板和底板使用6mm厚A3钢板作面板。用8号槽钢作模板竖肋对面板进行加固。吊箱分三节,每节分两片,节间和片间均用螺栓连接。第二节底与系梁顶平齐,在与系梁顶接触面处设法兰,用于与第一节法兰锁紧系梁,第一节在系梁位置开凹形槽口,并将钢板向外伸出40cm,确保与系梁紧密连结。第一节系梁以下部分直径逐渐收缩,至略大于护筒直径(图2)。

3.组装与下沉
在钻孔平台上的相应位置预制系梁,略短于设计长度,端头要预留连接钢筋。准备工作做好后,在沉放位置上拼装第一、第二节吊箱及系梁,吊起,抽出预制系梁的底板,将联体的吊箱放入水中并缓慢下沉。当下沉到第二节顶与钢平台平时,拼装第三节吊箱,继续下沉到设计标高,最后用工字钢将吊箱和钢平台连结成一个整体。
4.封底
先用沙袋堵塞吊箱与护商之间的缝隙,然后浇筑水下混凝土封底。待混凝土达到一定强度后,抽出吊箱内的水,拆除悬吊系数割除护筒,对封底混凝土面进行整理,有漏渗水时要紧系封堵。
5.浇筑结构混凝土
将桩头凿至设计标高,绑扎系梁和墩柱钢筋,支模板,浇筑系梁与桩头连接处的混凝土。混凝土产生一定强度后,安装墩柱模板,浇筑墩柱混凝土,最后拆除墩柱模板。
6.拆除吊箱
向吊箱内回水至与河水面平,潜水员将吊箱节与节、片与片之间的螺栓拆除,用吊车分片吊起,直至将整个吊箱拆除。
四、设计计算
1.内外水头压力差计算
封底混凝土完成后,将箱内的水抽完进行后续作业,此时箱体承受能力必须满足内外水头产生的最大压力。因吊箱是圆形的,只须考虑它的失稳。吊箱所能承受的临界荷载为
![]()
式中Qc--吊箱所能承受的临界荷载;
E--钢材的弹性模量,取206000MPa;
I--lm高度竖向截面的组合惯性矩,单位米的四次方;
D--吊箱直径,单位m。
内外水头最大荷载:
Q=RWhL
式中RW--水的容重;
h--内外水头高差;
L--取1.0m
二者必须满足公式:
Qc>KQW
其中,K为安全系数,取2.0。
2.系梁与吊环的验算
系梁与吊箱连体起吊下沉时,为四点起吊,但考虑不均匀受力的因素,应验算系梁在最不利情况下的截面强度。另外,须对吊箱的吊环焊缝进行计算,使荷载应力小于容许应力。
3.封底混凝土厚度计算
封底混凝土的作用不仅在于阻水,而且还在于它能平衡吊箱抽水后受到的浮力。另外封底混凝土与护筒之间的粘结力可抵消一部分浮力,此时应满足以下平衡条件:
F-(W1+W2-G)≤πD[τ]T
其中,F为吊箱所受的力:
F=KRwV
其中,K--安全系数1.1;Rw=10kN/m3;V-一吊箱体积。
W1--每个吊箱的重量;
W2--预制系梁水中的重量;
G--封底混凝土的厚度;
D--护筒的直径;
[τ]--钢护筒与封底混凝土之间的容许摩阻力,kN/平方米。
在接头处混凝土浇筑完毕时,尚应满足以下条件:
K(2W1+2W3+W2+G≤RwV+πD[τ]T
其中,W3为系梁端部后浇筑混凝土的重量,其余符号意义同上。
用(1)、(2)式计算出的最大T值,作为封底混凝土厚度的控制值。
五、施工注意事项及安全措施
(1)搭设平台时须考虑到吊箱和系梁下沉时所需的空间,钢护筒必须精确定位,并使用导向架下沉;
(2)预制系梁与吊箱连接时,必须保证系梁轴线与吊箱的轴线的垂直,这样才能确保顺利下沉;
(3)拼装吊箱时,法兰之间垫以橡胶垫,同时涂以玻璃胶。玻璃胶应用早强型,凝固后有一定的强度和弹性;
(4)吊箱与系梁连体下沉时,要注意尽量保持各吊点同步下沉;
(5)封底混凝土采用水下导管灌注法,混凝土坍落度为18cm左右,可适当掺入粉煤灰以增强混凝土的泌水性。
参考文献
[1]交通部第一公路工程总公司.公路施工手册(桥涵分册).北京:人民交通出版社,1991.4



