[摘要]在对桥梁减隔震原理进行分析的基础上,依据连续梁桥在地震作用时受力的特点,对连续梁桥的固定支座进行了减隔震设计,将原来的固定支座改为相对固定。对该桥在地震荷载作用下的抗震性能分析表明,采取V隔震措施后,固定墩的受力情况得到明显改善,主梁的纵向位移以及梁、墩的相对位移虽有所增大,但即使在8度的地震荷载作用下,位移幅度仍在支座允许的位移范围内。
关键词 连续梁桥 减隔震 固定支座 相对固定
连续梁桥具有结构刚度大、变形小的特点,在我国有着广泛的应用。对连续梁桥的空间地震反应分析表明[1],由于连续梁桥一般只设置一个固定墩,在地震荷载作用下,纵桥向的地震荷载的绝大部分均由设置在固定墩上的固定支座来承受,因此,固定墩处于十分不利的受力状态。如果一味要求固定墩满足强度要求、在弹性范围内工作,不仅是不经济的,而且也没有必要。本文探讨了一种新颖的作法,即利用减隔震的基本原理,在不改变原桥梁主体结构的情况下,仅对固定支座进行适当的减隔震设计,以满足"小震不坏、中震可修、大震不倒"的设计要求。
一、减隔震原理
图1为结构的加速度反应谱,从图中可以看出,延长结构的自振周期可以有效地减小结构的地震加速度反应,从而减小结构由于地震所遭受到的地震荷载。对于桥梁结构,采用橡胶支座、聚四氟乙烯支座以及其他滑动支座即瓦达到增加结构柔性、延长结构自振周期的目的。但是,随着结构自振周期的延长,梁体与墩台之间的相对位移也同时增加。为了减小由于结构自振周期延长而增加的梁墩相对位移,可以采用增加结构阻尼的方法。由图2可见,加大结构的阻尼,地震引起的位移反应能得到明显的抑制[1]。
综上所述,减隔震的基本原理为:
(1)采用柔性支承,以延长结构的自振周期,从而减小结构由于地震引起的内力反应;
(2)采用阻尼器或耗能装置,以控制由于周期延长而导致的过大的相对位移;
(3)具有足够的刚度和强度,以支承正常使用极限状态下的水平力(如风荷载、汽车制动力等)。
二、工程背景
本文以某五跨连续梁桥为工程背景,该桥跨径组合为49.90+3X80.00+49.90(m)。桥址的土质(在地表以下20.0m范围内)为淤泥、淤泥质亚粘土、粘土和细砂,地基容许承载力[σ0]<130kPa。根据《公路工程抗震设计规范》(JTJ004-89)第4.2.2条规定,确定该桥场地类别为Ⅳ类场地上。
该连续梁桥的上部结构为两个分离的单箱单室变截面箱梁,主域处梁高4.5m,边墩及跨中的梁高均为2.0m;主墩为变截面空心柱体,边域为排架式撤柱,纵桥向两排,每排3个实心嫩柱、主梁和桥墩之间采用盆式橡胶支座连接。
1.分析模型
该桥的抗震计算采用同济大学土木工程防灾国家重点实验室桥梁抗震学科组编制的程序NSRAP进行,简化的动力分析模型见图3。
考虑到桥墩基础为钻孔灌注桩,墩底位移相对较小,将桥墩固结在墩底会增大结构内力反应,故而适当放大结构周期,将墩延长约3倍桩径固结【3】。桥墩依线弹性梁单元来处理。计算中对活动支座考虑其非线性效应,用非线性支座单元处理。采用Ⅳ类场地人工波作为输入地震波,依Eurocode8对地震波进行三个方向组合,以纵桥向为验算主方向【4】。设计基本烈度为7度。
2.验算结果
对结构进行非线性时程反应分析,固定墩墩顶截面内力反应见表1,固定墩墩底截面内力反应见表2。计算结果均以一幅计。
3.结果分析
(1)固定支座
设计单位设计的盆式支座布置情况为(以一幅计):两边墩分别设置两个TPZ3000-ZX型盆式橡胶支座,固定墩设置两个TPZ
15000-GDZ型盆式橡胶支座,余主墩上皆各设两个TPZ15000-ZX型盆式橡胶支座。
TPZ 15000一GDZ型盆式橡胶支座为抗震型支座,其竖向承载力为15000kN,可承受的最大水平力为15000
X 20%= 3000kN,故固定墩墩顶所能承受的最大水平力为 6000kN。
由表1可见,6度地震荷载作用下,固定墩墩顶所承受的水平力为6455kN,大于其上固定支座所能承受的最大水平力,固定支座被剪坏。
(2)固定墩
对固定墩的钢筋混凝土截面进行弯短一曲率关系分析,得到其纵向反应及屈服弯矩见表3。
由表2、表3可见,7度和8度地震荷载作用下,截面的能力/需求比大于1,表明固定墩墩底截面发生塑性变形,即,在承受一定的轴力作用时,截面所承受的弯矩超过截面屈服弯矩,进入了非线性工作阶段。
(3)解决方案
由验算可知,该桥在6度地震荷载作用下,固定支座已被剪坏,不能满足桥现关于"小震不坏"的设计要求。而且,固定墩在7度地震荷载作用下的"截面能力/需求比"高达180.4%,这说明设计基本烈度地震荷载作用下,固定墩的强度已不能满足。因此,"中震可修"的要求也难以保证。
通常遇到这种情况,常采用以下解决方法:
(1)将原有支座改为符合承载力要求的抗震型橡胶支座;
(2)对桥墩进行延性设计,将桥墩设计得具有足够的延性,在控制变形的前提下,利用塑性镇来耗能;同时由于塑性铰的出现而使结构的基本自振周期延长,从而减小了地震所产生的惯性力。
本文在进行抗震验算时,该桥主体方案已经确定,并已经开始施工。在这种情况下,在不增加工程造价的前提下,采用了第一种方案,即对原有的固定支座进行了再设计,引入减隔震概念,以使其满足设计要求。
二、减隔震设计
1.设计思路
以往在进行抗震设计时,设计师总是过多地强调强度要求,希望采用的支座可以满足最大的地震荷载。可是,地震荷载具有很大的偶然性和随机性,正常使用极限状态下桥墩所承受的荷载与设计地震荷载时桥墩的受力相比是很小的,以本桥为例仅占
3.23%。由此可见,若以设计地震荷载来控制桥墩及支座的设计,在经济上要增加很高的投入,同时桥墩也处于十分不利的受力状态。
为此,我们将固定支座设计为相对固定,即在正常使用极限状态和6度地震荷载作用下,固定墩保持正常工作,承担汽车制动力和一定的地震荷载;而在超过6度地震荷载作用下,释放固定墩的顺桥向约束,使整个上部结构能够沿纵桥向滑动,从而延长了结构的自振周期,以达到减震耗能的效果。
2.设计方案
用改造过的 TPZ 15000- ZX盆式橡胶支座来替找原来的 TPZ 15000- GDZ盆式橡胶支座。TPZ
15000-ZX盆式橡胶支座为纵向滑动支座,改造前如图4所示。
在TPZ 15000-双盆式橡胶支座的纵桥向加限定钢挡板,用承压型高强螺栓使之与支座顶板连接,并提供约束反力。这样,在正常使用极限状态和矿地震荷载作用下,支座不滑动,承受汽车制动力和~定的地震荷载。当地震水平力逐渐增加,大于螺栓设计荷载时,支座螺栓被剪断,滑动面开始相对滑移。在支座上
100mm处设置抗震挡块,以限制支座顶板与底盆的相对位移。改造后的支座图见图5。
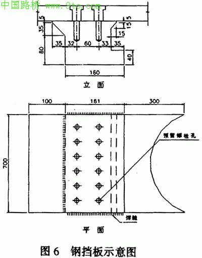
(1)钢挡板设计
由图5及图6所示,在TPZ 15000-ZX盆式橡胶支座的上顶板和下底盆之间加设两块钢挡板。钢挡板上部与顶板之间以高强螺栓连接,下部与底盆之间以三面围焊焊缝相连。钢挡板的圆弧面与支座钢盆紧贴,外测±100mm设抗震挡块。纵桥向的约束力由钢挡板和高强螺栓共同提供,螺栓被剪断以后,由抗震挡块来控制顶板和底盆之间的相对位移。
(2)高强螺栓设计
根据前述减隔震设计思路和支座所需承受的顺桥向水平荷载,对高强螺栓进行设计。
为保证固定墩免于屈服,以固定墩屈服弯矩对应的水平剪力为设计控制值。固定墩在设计轴向荷载作用下,其屈服弯矩为
125800kN·m,对应水平剪力为6524kN,每个支座需提供 3262kN。采用M24,8.8级高强螺栓。
考虑到桥墩在正常使用极限状态下的安全性,采用18个螺栓。螺栓的实际极限承载能力为 168.82
X 18= 3038.76kN,小于设计控制值 6.84%。
3.方案验算
在全桥变为纵桥向滑动时,将连续梁简化为只有7个自由度的平面结构,简化图式见图7。
利用自编程序对该桥进行分析,6度地震荷载作用下,固定墩墩底截面的内力见表4,墩与梁体的相对位移见表5。
由表4及表2对比可见,8度地震荷载作用下,固定墩的剪力及弯矩均有大幅度的下降,其中剪力仅为改造前的95.42%,弯矩为改造前的93.56%,这使得桥墩的安全系数大大提高。同时,由表5可见,主梁的纵向位移及梁。墩的相对位移有所增大,梁体的最大正向位移为
81.4mm,最大负向位移为13.2mm,但位移幅度仍在支座的允许滑动范围(±100mm)以内。
四、结论
本文根据减隔振原理对连续梁桥的固定支座进行了减隔震设计,结果表明:
(l)在正常使用极限状态和地震荷载作用下,固定墩仍处于弹性受力状态,受力性能得到明显改善;
(2)梁体的纵向位移及梁、墩的相对位移虽然有所增大,但位移幅度仍在支座的允许范围内;
(3)工程的总体造价并没有显著提高。
采取减隔震措施后,在遭遇到地震时,桥梁的主体结构并没有破坏,只需在震后对支座的高强螺栓和锚固钢挡板进行更换,从而既满足了桥梁"小震不坏、中震可修、大震不?quot;的设计要求,又为实际工程人员所接受,不失为一种切实可行的办法。
参考文献
[1]范立础.桥梁抗震.上海:同济大学出版社. 1997
[2]交通部公路规划设计院.公路工程抗震设计规范(JTJ004-89).北京:人民交通出版社.1990
[3]Priestley,M.J.N et al,Seismic Design and Retrofit
,Seismic Design and Retrofit of Bridges,John Wiley&Sons,Inc.1996
[4]Eurocode 8:Stucture in Seismic Regions Design,
Part 2:Bridges,(draft),1993
[5]庄军生.桥梁支座.北京:铁道出版社,1994



