【摘要】本文全面介绍了南京长江二桥南汊主桥施工针对50m深水急流中大型钢围堰的稳固、3m大直径超长基桩的成桩、5100m3大体积钢筋混凝上承台浇筑的温控、195m大高度大斜率钢筋混凝土索塔的浇筑、300t大吨位大体积钢箱梁块件的安装、336m大长重斜拉索的牵引和张挂、628m大跨度复杂体系主渠的施工控制和体系转换、3年工期高标准施工质量的严格保证等所采取的相应工艺措施。
关键词
南京长江二桥 斜拉桥 钢箱梁 索塔 深水基础 关键工艺
一、概述
南京长江二桥跨越流经南京市区的长江,位于1968年建成通车的著名的南京长江大桥下游llkm。南京长江二桥南汊主桥为由过渡墩十辅助墩十南塔十北塔十辅助墩十过渡墩支承的跨度组合为58.5m+246.5m+628m+246.5m+58.5m=1238m的南、北对称的双塔双空间索面漂浮体系钢箱梁斜拉桥(见图1)。南京长江二桥斜拉桥以其628m主跨跨度而名列世界十大斜拉桥第三位,享有国内第一大斜拉桥之誉,并是南京长江二桥最大特色和亮点所在(见图2,全景照片)。
南京长江二桥南汊主桥为通航主航道桥,其地理位置在长江下游。南京长江二桥桥位水域水深流急,且受潮汐影响水位一日多变;其桥址地形高低不平且江岸多陡斜不稳;其基础位置地质复杂,基岩软弱。南京长江二桥斜拉桥主跨跨度之大在国内前所未有,其风状态下的大悬臂施工风险性很大。南京长江二桥施工工期短,其精品工程的标准对施工的要求极高。深水基础的万无一失、高索塔浇筑的速度与外观、大吨位钢主梁的架设、安装,各项高标准指标的实现,构成了南京长江二桥南汊主桥的突出施工难点。
承担南汊主桥从下部到上部主体施工的湖南省公路桥梁建设总公司,虚心采纳专家建议,学习国内外先进理论和方法,严密组织,充分投入,精心施工,攻克了一道道难关,确保了南京长江二桥南汊桥顺利建成并开创了许多值得借鉴的技术、工艺新思路。
二、50m深急水域大型钢围堰的稳固
南京长江二桥南、北两主塔采用了圆形双壁铜围堰着岩、堰内21根φ3m,长度分别为102m,87m的钻孔灌注桩、堰壁填充8700m3井壁混凝土、堰底浇筑8.5m厚封底混凝土、桩顶为6m厚钢筋混凝土承台即双壁铜围堰、基桩、封底混凝土、钢筋混凝土承台组合而成的大型联合基础以承受每墩约50万kN桥梁动静荷载和约75000kN的船舶水平撞击荷载(见图3)。
南、北塔两个大型水中基础,在施工低水位状态下,北塔水深39m,南塔水深20m。两域处地基覆盖层厚度南塔为33m,北塔为29m,其中36m范围内基岩面最大高差分别为0.57m和1.06m。清除覆盖层后,塔基础施工水深最大达到68m。墩位处高水位施工时最大实测水流速度达到3.8m/s。
南、北塔两个圆形双壁铜围堰外径36m,内径33m,堰壁仓厚15m,围堰最大高度为65.5m,是国内迄今为止最大型的深水钢围堰。两围堰封底混凝土厚度各为8.5m,整体浇筑的混凝土体积都超过6200m3,也是国内整体浇筑的最大数量的封底混凝土体积。
钢围堰采用塔位块件拼接的方式拼装和下沉(见图4,照片),即钢围堰在岸上制作底节,底节沿滑道下水,底节被浮运至墩位,然后在底节上逐步拼接块件并逐步在堰壁灌水而下沉至河床、接着在块件拼接过程中在堰内吹砂且在堰壁内逐步浇筑混凝土,最终依靠重力(自重加压重)穿过覆盖层着岩。
经过计算及专家论证,在长江6~8月洪水期间,钢围堰只有完成封底并完成了2~3根钻孔灌注桩后,其抵抗巨大水流冲击的安全性才能有充分把握。因此,如何确保钢围堰的顺利着岩,使钢围堰在长江洪峰到来之前完成封底和2~3很钻孔灌注桩施工,实现钢围堰有桩泄洪的目标,是钢围堰施工最关键的问题。在加大设备、材料和人员投入及管理力度的条件下,以下措施和工艺的采用是南京长江二桥钢围堰施工取得成功的最重要保证:
1.钢围堰施工时间的选定
为了确保钢围堰的安全渡洪,合理的钢围堰施工工期安排是非常重要和关键的。长江流域以雨洪径流为主,每年5~10月为汛期,11月~翌年4月为枯水期,洪峰多出现在6~8月,1月或2用水位最低。南京长江二桥南汊主桥业主与承包商于1997年8月25日签订施工合同,于1997年10月6日举行开工典礼,1998年3月11日完成了南、北主塔钢围堰安全、准确着岩,于1998年4用27日完成了两塔钢围堰的水下混凝土封底,并于1998年5月10日洪峰到来前成功完成了两主墩各3~6根钻孔灌注桩的施工。可见,对于国内规模最大的长江上的钢围堰施工,南京长江二桥做了合理的工期安排和严格的工期控制。合理的工期安排对于确保钢围堰施工的成功和降低钢围堰施工的造价有着重要意义。
2.全铁锚锚碇系统的布设
钢围堰自墩位就位开始至完成封底混凝土和少量几根钻孔灌注桩施工以前,经历钢围堰着床前的水中漂浮、着床后人上较浅的底部嵌入、吹沙下沉后人上较深的底部嵌固等几个不同受力状态阶段。这几个阶段钢围堰必须有一套绝对可靠的锚碇系统赖以依靠。在工期安排合理,三个阶段均在非洪水时期的情况下,钢围堰在水中漂浮阶段的锚碇系统的作用至为关键,因为这一阶段钢围堰的稳定状态最不利,钢围堰与导向船组承受较大的水阻力,且钢围堰的全部水阻力与风压均由锚碇系统承担。根据计算,北塔钢围堰在着床前的最大水流阻力加风压达到5000kN。
南京长江二桥钢围堰锚碇系统采用了全铁锚锚碇系统(见图5)。本系统在充分考虑了水流、风力的最不利荷载作用、钢围堰的最不利稳定状态、施工方便程度的基础上,按前期、后期分两期合理布置。事实再一次证明,该系统布设快、锚着力大、可靠性高、造价低、有安全储备及应急手段,完全可在水深流急的类似施工中应用。
3.对河床变化的跟踪观测
墩位处河床受水流一般冲刷、局部冲刷以及堰内吹砂影响,其地形随时发生变化。钢围堰从着床开始,在覆盖土层中下沉直至着岩,甚至在渡洪桩完成前的整个过程,其稳定和安全状况、平面位置以及倾斜度均受到河床地形变化的影响。因此,随时掌握堰内外河床变化情况是将钢围堰控制在理想状况的必要条件。
南京长江二桥针对钢围堰施工建立了一套人员、装备齐全的钢围堰观测体系,在钢围堰着床过程中,对水深、河床地形状况、水流速度、着床坐标、深度进行仔细观测;在围堰吹砂下沉过程中,跟踪吹砂施工进行堰内外即时观测;在围堰着岩后,每半月对河床进行观测,为钢围堰准确、安全着床、防止钢围堰下沉过程中的涌砂倾斜、控制钢围堰着岩精度、掌握钢围堰着岩后的冲刷状况提供了详细而准确的依据(见图6,吹砂、吸泥照片)
4.漂浮状态的塔吊布置
在以往的钢围堰块件拼装和堰内清淤吹砂施工中,即使对于铜陵大桥31m直径的大型钢围堰,也只需在导向船的一对对角各布置一台20t桅杆吊机就可满足全部吊装要求。但对于南京二桥36m直径的大型钢围堰,即使在导向船系统四个角共布置4台20t桅杆吊机,对于钢围堰施工的吊装需要,总还是有无法覆盖的区域。为此,在南京二桥钢围堰施工中,除了在导向船3个角上布置3台20t桅杆吊机外,还在导向船的船体上布置了一台240t·m的塔吊,只有这样布置吊机,钢围堰平面范围才能全部被覆盖。
塔吊布置在漂浮状态的导向船体上的方式在国内外属于首次运用。南京二桥的这种尝试,是建立在对导向船系统整体和局部结构进行仔细分析计算并对船体局部进行结构处理的基础上的。南京二桥的这种吊机布置方式很成功,塔吊功效较吊机提高了5倍,充分满足了钢围堰施工的全范围水平与垂直吊装要求(见图7,照片)。
5.拼接和定位的严格控制
钢围堰在漂浮和下流状态的块件拼接精度和焊接质量以及它的整体平面位置和垂度控制是非常重要和难度较大的工作。南京二桥针对钢围堰施工,制定了一整套关于块件拼接、整体定位精度和质量控制的易于实行的理论方法和操作细则,同时也制定了完整细致、高标准的工序报检程序。钢围堰的施工质量得到了切实保证。
6.封底混凝土供应的充分保证
为保证钢围堰内水下大面积、大体积封底混凝土强度、整体性和密水性,封底混凝土必须一次性不间断连续浇筑,而且应该尽快一气呵成。为此,在南京二桥大封底施工中,进行了大量前工艺技术准备和精心的施工组织。其中很关键的工作是对数量巨大的混凝土输送供应的组织。
通过分析论证,采用水陆同时供应混凝土的方式。除了按以往方式在塔位钢围堰附近布置3台50~60m3/h生产能力的水上混凝土搅拌站外,还在岸上与钢围堰之间搭设军用舟桥,在岸上设立商品混凝土供应站。这种多方位封底混凝土供应方式(见图8)在国内是首次采用,它充分满足了快速浇筑封底混凝土的输送供应要求,创造了钢围堰封底仅用29小时浇筑6250m3混凝土的国内最高纪录。
南京长江二桥钢围堰施工从1997年11月6日钢围堰底节在塔位处完成就位开始至1998年5月10日实现有桩渡洪目标,花费了半年时间使庞大的钢围堰体系得到了稳固,成功地抵抗了1998年夏季发生在长江上的举世关注的特大洪水灾害,在同时进行施工的长江上其他各大桥均停工的情况下,为南京二桥主塔基础在洪水状态下的不间断施工直至最终取得速度与质量上的巨大成功创造了充分有利的条件。值得提出的是,钢围堰各项施工质量均达到和超过了设计和规范要求标准。其中,对于围堰加工拼装质量,直任公差标准为±5cm,实际公差南、北塔分别为3.9ccm和4.2cm,椭圆度在2cm以内。其他如焊缝间隙、错台、垂直度等均被严格控制在要求精度以内。另外,水密性和探伤检测及实际使用证明焊接质量完全符合规范、规定要求。对于围堰的着岩精度,设计要求顶、底面中心偏位小于围堰总高的l/100,而实际做到小于正1/200。对于封底混凝土的质量,在每塔钻孔取芯3很样品,表明混凝土质量均匀,无浮浆,水密性好,强度高,质量非常理想。
三、3m大直径超长基桩的成桩
南京长江二桥南北两主塔各有21根φ3.0m的钻孔灌注桩,基础施工的关键在于基桩成孔技术。钻孔施工在钢围堰完成了封底后正式开始。钻孔采用清水护壁,旋转钻机气举反循环钻进方法,钻具以牙轮滚刀钻形式为主。
南、北塔从基岩面着起的最大钻孔长度分别为47.17m和59.95m,从平台面着起的最大钻杆自由长度分别为107m和130m。钻孔所要穿过的岩层基本为胶结砾岩层,部分极软岩的天然单轴抗压强度平均值为1.259MPa,砾岩强度为50MPa以上。
由于岩石强度大,钻杆自由长度也大,因此,钻孔施工着重要解决的问题是保证成孔的垂直精度和避免过去常出现的断钻杆、掉钻头现象。钻孔施工的首要保证因素是钻机的性能。本桥两个主塔基础采用了性能优越的2台德国WIRTH钻机、针对大直径钻孔施工不断进行了改进的共5台洛阳和武汉钻机。本次采用的钻机和对钻机的使用,除了钻机扭矩、钻杆强度和刚度、钻头牙轮的布置和材质以及对钻头的修复方法有其先进性外,关键技术在于钻进过程中设置了导向钻杆和改进了钻头配
重方式,从而有效地解决了钻孔垂度、钻孔进尺速度、钻具稳定可靠性的问题。
为了保证钻孔的垂直度,首先要对钻机底座进行精确测量,控制好其平整度。此外,钢护套安放的稳定和垂直程度也是钻孔垂直精度的必要保证。围堰着岩后,由于岩画的高差,因而护筒安放采用了先钻后埋的方式,即在孔位使用钻机以刮刀钻头先扫除障碍物并进入岩面。然后下放钢护筒,并震打使之进入岩面而稳固。护简采用上口导向下口自垂定位法,即钢护筒的下放仅设置了上导向架,而取消了下定位毕。钢护筒下放接高的精度采用绑线法控制(钢护筒下放见图9,照片)。
南京长法二桥的两主塔42根3m大直径孔灌注桩仅用了130天不到的时间以无任何缺陷优质的成绩完成,大大地提前了工期。在施工质量方面,护筒实际最大倾斜率为42%,也远远小于1/200的标准;其他验收项目如沉淀厚度、混凝土强度、超声检测、钻芯取样等结果均十分理想(钻孔施工见图10,照片)。
四、5100〈d〉大体积大规格承台浇筑的温度提制
南京长江二桥两个主塔承台底面标高为-11.0m,顶面标高为一5.0m,处于水面以下。承台在钢围堰内抽水以后以围堰内壁为侧模,在桩顶部钢炉筒上搭设底模进行浇筑。承台直径为33m,厚度为6m,采用30号混凝土的钢筋混凝土结构,混凝土体积为5130m3(见图11,照片)。
南京长江二桥承台混凝土浇筑属于大体积混凝土施工,其温差应力造成混凝土开裂的问题必须采取温度控制措施加以解决。本桥主塔承台采用的温控措施如下:
1.
模拟实际情况进行温控计算,确定浇筑方法,制定温控标准,提出温控措施。
2.
进行水化热试验,确定发热参数,选定混凝土配比。选用水化热低的#425矿渣硅酸盐水泥,掺用25%<2>级粉煤灰代替部分水泥以降低水化热。掺高效缓凝外加剂以削弱温升峰值。
3.承台分1m,2m,3m三层浇筑。混凝土内表温差、表面与环境温差、层间温差均按25℃拨制。
4.布置纵横交错的多层分布的水平流通散热管。其水平、竖向间距均为1.2m。
5.在承台水平轴线附近同一竖直断面各层中埋设温度传感器,布设温度测点进行温度监测,以便及时掌握信息,调整和改进温控措施。
6.制定详细表格,由专人负责做温度监测详细纪录。温度峰值(约2.5~3d后)出现前每2小时观测一次,峰值出现后每4~6小时观测一次(见图12,照片)。
7.控制散热管进水温度,使水温和混凝土温度之差小于25℃。
8.散热管通水时间机温差控制情况调整,时间尽量长一点。
9.每层混凝土浇筑完毕待终凝后立即在上表面作蓄水养护,蓄水深度不小于3Ocm。
南京长江二桥南、北两塔分别于1998年11月20日和12月6日完成承台施工。由于采取了切实可行和严格的温控措施,两个大型承台的施工均符合25℃的温控标准,承台无任何裂缝与龟裂纹。
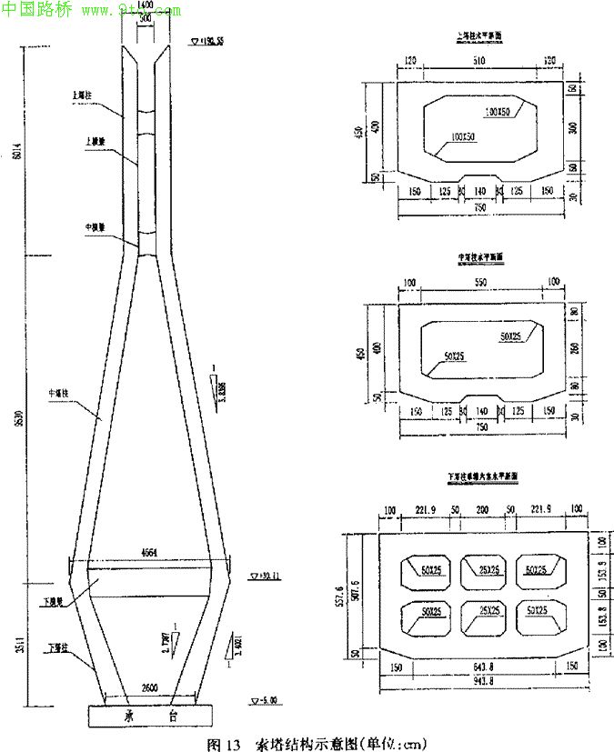
五、195m大高度大斜率索塔的浇筑
南京长江二桥南北两索塔为多边形外形的混凝土结构,从承台顶面算起总高度为195.55m。索塔对称地由上、下游两个肢塔,通过下、中、上三道横梁相连构成。索塔以下、中横梁为界区分为下、中、上三部分。下塔柱为索塔承台顶面至下横梁部分,为抵抗船撞水平力,从船撞线以下其桩身分别为多室或实心的变截面钢筋混凝土结构,船撞线以下其柱身分别为多室或实心的变截面钢筋混凝土结构,船撞线以上则为单窒空心变截面钢筋混凝土结构。下塔柱横桥向由内向外倾斜,内侧斜率为1:2.7387,外侧斜率为1:3.4021。下塔柱总高度为35.11m。中塔柱为索塔下横梁至中横梁部分,其柱身为标准的等截面空心外侧带有装饰凹槽的钢筋混凝土结构。中塔柱横桥向由外向内倾斜,斜率为1:5.8395。中塔柱总高度为95.30m。上塔柱为索塔中横梁以上的有索区部分,其柱身除塔部分外,为标准的竖直的等截面空心断面并设置了环向预应力的钢筋混凝土结构,其柱身外侧同样设置有装
饰凹槽。其总高度为65.00m。索塔下横梁作为联系肢塔、承担悬拼过程主梁重量的受力大而复杂的构造物,其长为34.7m,宽为7.8m,高为8.om,为预应力混凝土箱形结构。索塔中横梁位于中塔柱和上塔柱交接处,其长为5m,宽为7.1m,高为8m,为蝴蝶外形的预应力混凝土箱形结构。索塔上横梁位于上塔柱中上部,为与中横梁形状基本相同的钢筋混凝土结构(塔尺寸见图13)。
南京长江二桥索塔施工主要难度在于它的大高度和大倾斜率以及复杂体系所带来的施工设备和通道的布置、索塔浇筑模板的设计和运用、斜塔柱在施工过程中的根部应力限制、大体积攒混凝土浇筑的质量保证、高空作业的结构和人员安全保障以及索塔施工的精度控制等一系列需要花更大精力和更多投人着力解决的问题。针对这些问题,南京长江二桥主塔施工采取了下列措施:
1.根据索塔结构、施工阶段等的具体特点,按照方便、安全、经济的原则合理选用和布置塔吊、电梯、水土拌和站系统以及行走通道,并充分满足索塔施工的需要。
2.根据塔柱的构造特点,下塔柱浇筑采用了翻模系统,而中、上塔柱浇筑则采用了一套自升爬模系统(见图14,照片)。爬模系统的设计和运用达到了安全、灵活、方便、刚度大、外表和线形易于控制、功能齐全的效果。中、上塔柱爬模系统既起模板作用又充分起到了牢固的施工平台作用。
3.增加劲性骨架的刚度,使之充分起到了高空倾斜状况下的可依靠作用。改善劲性骨架的构造设计和安装方式,采用对整体分块吊装,并附可能预先安装的索塔结构件于其上的上塔方法,提高了工效,减少了高空作业工作量。
4.下塔柱施工采取钢绞线预拉方式有效控制了下横梁施工在其根部内侧所产生的过大拉应力(见图15,照片)。
5.下横梁施工采用两次浇筑,首次多后决少的浇筑方式,并在浇筑过程设置大刚度的竖、斜钢管以及牛腿支撑体系,克服了可能的混凝土开裂以及在下窄上宽的不利空间中无法有效布撑等难题。
6.中塔柱浇筑通过设置预施水平顶力的主动模撑(见图16,照片)进行中塔柱根部应力控制,解决了大高区、大斜率柱身浇筑线形与应力控制难以解决的问题,理想地实现了线形、内力双控目标,并且显著地加快了施工进度。
7.在索塔施工测量中,应用GPS技术建立高精度控制网,采用高精度瑞士莱卡TC2002型智能全站仪进行索塔施工定位,首创并成功运用锚固中心、下口中心直接观测的空间斜拉索套筒定位技术,全面、充分地保证了索塔施工精度。
同时,为了提高素塔施工先进技术含量,追求和实现精品工程目标,南京长江二桥通过1:l实体模型试验验证,在上塔柱施工中成功采用了小半径大吨位预应力布设、预应力真空辅助吸浆法压浆等国际先进技术;通过对索塔施工的混凝土配比的数百次试验、模板结构的优化、振捣理论与实际操作的试验、研究和探索,获取了最佳的蒙塔混凝土施工效果。
南京长江二桥南、北两个高索塔施工,索塔钢筋混凝土、预应力施工质量优秀,外观质量达到了国内最高水平。索塔斜拉索套筒精度均满足设计要求。索塔轴线、纵、横、标高偏差在5mm以内,倾斜度小于1/13500,两塔间628m跨径,误差小于3mm,这些指标都远远高于国家验收标准(索塔外观见图17,照片)。
六、300t大吨位大体积钢箱梁块件的安装
南京长江二桥南汊主桥钢箱主梁采用块件对称悬臂拼装焊接的方法安装(见图18)。该方法总体安排和步骤如下:
l.在靖江长江边专门的制造场地进行钢箱梁快件的预拼制作;
2.索塔施工完成后,在钢围堰和下横梁位置搭设支撑托架,以作为无索区钢箱梁块件安装的承托。钢箱梁无索区部分是钢箱梁悬拼的起始依托,因此,托架的搭设、无索区块件的安装是控制悬拼进度的工作,应尽早尽快进行(见图19.照片);
3、元索区钢箱梁安装完毕前,在南京金陵船厂进行钢箱梁块件悬拼吊机的加工制作;
4.由于钢箱梁块件采用船运方式进入桥位区,那么桥位浅水和滩地将无法使用吊机直接悬拼。为此,在两岸浅水和辅助墩与过渡墩之间的辅助跨滩地区搭设支撑排架,以作为岸侧钢箱梁块件安放的承托。岸侧浅水区排架上预先安放的块件仍可由吊机起吊安装,而辅助跨内预先安放的块件则可由千斤顶等设备先于斜拉索的安装而精确安装成整体。排架需要设置钢管钻孔灌注桩,且其他搭设工作量很大。另外,从减轻靖江场地块件存放压力的角度考虑,排架的搭设、岸侧块件的安放也应与托架、悬拼工作同时甚至应尽早尽快地进行;
5.利用停靠在架体前端的大型浮吊吊装,采用连续千斤顶牵引或顶推的方法,完成托架,排架上钢箱梁块件的安放工作(安装工作见图20,照片);
6在托架上精确安装无索区钢箱梁(见图21,照片);
7.在无索区钢箱梁上安装完成第一对斜拉索后,采用浮吊整体起吊吊机主构架的方式在无索区钢箱梁上安装悬拼用吊机(见日22,照片);
8.两索塔同时进行悬拼施工(见图23,照片);
9.在边跨合龙施工前,完成辅助跨排架上块件的精确焊拼安装,辅助跨钢箱梁向岸侧方向预移55cm安装形成整体。预移空隙是为合龙过程温度变化所留。边跨合龙段为靠近于辅助墩的浅水区排架上的一段块件;
10.在以吊机完成边跨合龙段之前的最后一段钢箱梁块件的悬拼后,合龙块向江侧方向主梁靠拢,辅助跨钢箱梁则整体向合九块靠拢而完成边跨合龙施工;
11、继续进行主跨悬拼施工直至完成主跨合龙段安装。主跨合龙段处于斜拉桥整体的中心位置,为元索的一段块件,也是全主梁最后一段安装块件。
钢箱梁截面高为3.5m,宽为38.2m。托架钢箱梁块件长7.25~7.5m,最重梁段为200t;排架钢箱梁块件最长为15m,最重梁段为270t;吊机悬吊梁段全部为标准梁段,其长为15m,重为270t。浮品吊装施工,加上特制的吊架,吊装重量超过了300t(钢筋梁见图24,照片)。
南京长江二桥大吨位大体积钢箱梁块件的安装施工采用了以下几个重要工艺措施:
1.托架、排架的架设
托架、排架的平面中轴线与桥轴线重合。托架为以索塔承台及钢围堰为依托塔设的钢管桩及万能杆件支架。由于无索区钢箱梁是出钢围堰范围8m,所以托架钢管桩为倾斜方式。托架的倾覆趋势依靠下横梁设置的拉压构造抵抗。排架由两部分组成,由辅助墩向江侧方向浅水区的支承基础为钢管混凝土钻孔桩,上部为万能杆件梁。辅助墩与过渡墩之间的滩地的支承基础采用入上钢管桩和钢构件梁构造,南岸以贝雷架为梁体,北岸以"六、四"架为梁体。托架、排架结构的设置,要考虑到块件移动过程中的冲击和不均匀荷载作用。对于排架,在等待吊机悬吊和边跨合龙的过程中,其上块件的存放达半年时间之久。在此期间耕架除受钢箱梁荷载作用外,还要受到冲刷、风荷载、雪荷载及船撞作用力影响,这些不利情况必须在结构设计和架设中加以充分考虑(见图25,照片)。
2.浮吊的块件吊装
无索区、岸侧浅水区、辅助跨内钢箱梁块件均采用350t浮吊在托架或排架端部水域逐一吊装上架体。由于钢箱梁块件没有被考虑设置相应结构而可被浮吊直接起吊,因此,专门加工的钢箱梁与浮吊之间的联系吊架被用作浮吊起吊钢箱梁的工具(见图26,照片)。
3.块件的移位和定位
托架和排架的顶面设置了平面中心线与桥轴平面线重合的双排轨道。钢箱梁块件被吊装上架体后,以四个滑块将其支承住。然后采用托或顶滑块的方式使块件滑移到位。滑块移动采用钢、钢摩阻滑动方式。为控制钢箱梁块件顺利而准确地落在滑块上,在钢箱梁和架体上相应设置了限位装置。对于托架和辅助跨排架上的梁体,块件还需要进行纵横向的精确移位。块件的横向移位采用4个千斤顶同时顶4个滑块侧面的方式进行。
对于托架及辅助跨排架上的钢箱梁块件,经过纵横定位后可进行落架操作,使钢箱梁定位在正确的标高位置上。块件采用4个扁式千斤顶支承在轨道上落梁。之所以采用扁顶,是因为钢筋梁块件要通过下横梁辅助墩永久支座而不可能将轨道面设置得比设计梁底面太低。另外,箱梁和架体的受力要求也决定了不宜在轨道以外的其他位置设顶。精确定位后的钢箱梁块件支承在永久支座或钢轨与梁底之间的钢模块上。块件定位后两个块件之间以临时匹配件固定后可施焊逐步连成整体。由于4个滑块等高,所以经纵横定位后的钢箱梁块件在落架结束后并不因为落梁操作而造成平面位置的变动。作为基准件的下横梁上的块件和过渡墩上的块件,采用对钢箱梁纵轴线上前后两点及与纵轴线垂直的横基线上左、右侧两点进行共同控制定位的方法,可达到事半功倍的效果。
4.吊机的块件吊装
采用了在同类型的法国诺曼底桥成功使用的桥面吊机技术系统(见图27,照片)。桥面吊机主要由吊架、扁担梁、千斤顶撬座、轨道梁等几个部分组成。该吊机可起吊500t重的梁体,起吊过程可调整块件纵、横向斜度、纵向位置,但块件横向位置需采用手拉葫芦拉动或其他辅助方式微调。吊机可在桥面轨道上滑移前行。
5.吊机在桥面上的安装
吊机总重约90t,其受力主构架为钢桁架结构。由于桥面空间及桥面以上吊装能力的限制,吊机安装采用构件单件在桥面组装的方法是不可行的。因此安装只能从吊机主构架整体上桥方面作考虑。如果吊机主构架能上桥,则吊机其他的配套构件和设备重量均较轻,可将它们容易地安装到桥面或吊机上。因此吊机安装问题的关键是如何实现吊机主构架整体上桥的目的。
吊机安装施工利用350t浮吊吊装,采用吊机横杆件临时后移、浮吊载至前移的方案,一举解决了长X宽X高=30mX16mX15m庞大体积吊机在40m吊高状态下,利用空间容纳能力相对不足的浮吊,一次性就位于桥面轨道上的当初认为无法解决的难题。
6.悬拼块件的拼焊
每段块件在被起吊与主梁平齐后,以栓接匹配方式使之与主梁临时连接,然后施焊,以完成悬拼施工。块件对接的顶底面局部错位,采用焊座、施顶的马平方法消除。块件精确定位并匹配后,另由其他专门承包商完成钢箱梁的施焊工作。
7.合龙段的安装
边跨合龙段采用千斤顶纵横定位,采用扁顶落梁使之与已悬拼过来的主梁对接。接着已安装成整体的总长为59m的辅助跨钢箱梁整体,以千斤顶顶动,并在过渡、辅助墩顶永久支座上滑动55cm,使之与合龙段对接。为了克服简支在两个永久支座上的钢箱梁的弯曲线形所造成的对接口转角,另在过渡墩设置了千斤顶进行垂直调节,以保证辅助跨钢箱梁与合龙段接口的平顺合龙。
中跨合龙段采用两台悬拼过来的吊机对称起吊的方式进行吊装。由于合龙段的特殊构造以及起吊方式的改变,吊机系统被专门改造。合龙过程采用了水箱配重方法,水箱随起吊量的逐步施加而逐步放水释重,以保证过程中合龙标高的稳定。合龙过程还设置了劲性加强件临时抵抗温度变化对施焊质量的影响。
主桥从1999年12月5日正式开始第一段钢箱梁吊装,至2000年7月9日按计划完成跨合龙。钢箱梁安装施工全过程是安全顺利的,悬拼施工达到了正常天气情况下5-6天一个节段的高速度。合理的工艺措施确保了全部钢箱梁安装施工的成功。合龙精度达1mm(合龙施工见图28,照片).
七、336m大长度斜拉索的牵引和张拉
南京长江二桥的两个索塔,每塔在其两侧每一侧有20对斜拉索,每塔斜拉索总数量为20x2x2=80根。斜拉索以空间形式布置.索塔每侧有上、下游两个空间索面。斜拉索在桥面上按15m和12m两种间距布置,12m间距处于辅助跨内。斜拉索在索塔上的锚固间距由下而上由2.5m变为1.75m。斜拉索采用镀锌平行钢丝、聚乙烯防护、冷铸锚头构造形式,按拉索直径分类共有φllZmm,φ120mm,φ130mm,φ141mm,φ150mm五种规格。最大的斜拉索长度为336.7m,相应重量达27.02t。
斜拉索的牵引和张拉对应于梁段的安装进行。在无索区钢箱梁第一对斜拉索牵引和张拉完成后,即开始第一对钢箱梁块件的悬拼施工。此后.每安装一块钢箱梁,即在该块钢箱梁上进行斜拉索的牵引和张拉施工。
斜拉索有两种牵引进索塔套筒的方式,一种是桥面进索,一种则是水面进索。
南京长江二桥的水面进索方法是建立在受力分析和全面布置基础上的。其设施主要由四大部分构成,一是放索体系,二是牵引和张拉体系,三是连接体系,四是护索体系。放索体系由载索船、船上放索架、架上索盘、盘上斜拉索等组成;牵引体系由牵引件即钢丝绳、钢绞线或拉杆穿过套筒的卷扬机、连续千斤顶、张拉千斤顶及牵引钢丝绳绕过塔顶固定转向轮的卷扬机等组成;连接体系包括钢丝绳与斜拉索冷铸锚头、钢丝绳与拉杆、拉杆与锚头、拉杆与拉杆、钢绞线与拉杆、钢绞线与钢丝绳等之间的接头及钢丝绳与斜拉索的连接夹具、临时锚固连续千斤顶钢绞线的开合法兰及临时锚固拉杆的开合螺母等构件,张拉体系由张拉千斤顶、拉杆、反力架、油泵等组成;护索体系由转向轮、拉索托轮、防磨轮胎等设施组成。该方法施工要点是:(l)保护放索体系的稳定。本桥对船体、索盘转动、索在桥下空中的稳定都采取了重要措施;(2)保证牵引和连接体系的安全。长索必须在下端先锚固后,采用卷扬机、连续千斤顶、张拉千斤顶接力的方法牵引。在包括连接件在内的斜拉索进入套筒口过程中,通过过塔顶的卷扬机钢丝绳调节,确保连接钢绞线、拉杆及斜拉索钱头与套筒之间的平行.严防磨擦损伤;(3)保证护索体系的实效性。
本桥斜拉索的牵引施工在沿用以往成熟工艺的基础上,针对本桥的特点又重点克服了以下三个难点:
1.解决空间索面斜拉索牵引过程中的拉索防护问题。
空间索面斜拉索被拖过桥面的状态,不像直索面那样有固定的直线线路,它在通过桥面悬臂端时需要设置运转灵活的平、竖面的且使拉索保持小弯曲状态的转向装置;在斜向滑过桥面时还要设置位置不固定的防磨损支垫系统,以保证它不受损伤。针对上述两方面的需要,大直径空间转向装置和轮胎支垫体系被采用,使牵索施工简便、顺畅,并有效地防止了斜拉索的破损和钢箱梁表面的磨损。
2.解决牵索过程中索盘转动不匀问题
由于卷在索盘上的桥面固定端冷铸锚头的重量的存在,必然会造成牵索过程中索盘的突然加速转动。这种突发转动依靠刹车装置往往不能被有效控制,从而使得操作很费劲、缓慢,甚至有时下安全。本次施工采用了对称安装配重件的方法,保证了索盘均匀稳定地转动。
3解决已成桥边跨水面进索的问题
在桥面斜拉索锚固点前方桥下上索能使斜拉索较平顺地上桥,且当斜拉索前端被牵至套筒口附近时,其尾端也已上桥至锚固点附近。但本桥到边跨悬拼至排架位置时,已无法在悬臂端前下方上索。对于岸上辅助跨内的斜拉索,其桥面锚固点已在岸边水域前方很远的滩地区,情况更为不利。本桥采用了在岸边水域桥面侧下方上索方法。采用此方法,有两个难点需要解决。一是斜拉索的平面弯曲变得更复杂了。本桥通过改变转向装置的摆放位置和增设平面限值平滚的方法得以解决;二是当斜拉索上端至套筒口位置时,其下端仍在索盘上,即斜拉索还有很长一部分无法上桥。对于这个问题,本桥采用了使斜拉索在桥面弯曲或跨索塔摆放的解决方法,即当斜拉索上端被牵至套筒口后,在桥面另设卷扬机和夹具牵引斜拉索,使其桥面部分尽量多道小弯曲地平躺至索塔附近,或者使其桥面部分平躺至索塔另一侧。这样增加了桥面容索能力,使斜拉索能够全部上桥。
本桥斜拉索的张拉最大吨位为46Ot,最大张拉吨位的斜拉索采用600t千斤顶张拉。
本桥斜拉索的牵引和张拉施工是非常成功的,施工中所采用的工艺简便实用,安全性高。施工速度快,费用节省,值得推广应用(挂索见图29、30,照片)。
八、628m大跨度复杂体系主粱的施工控制和体系转换
对于南京长江二桥628m特大跨度五跨连续这样复杂体系的斜拉桥主梁施工,大悬臂状态下结构线形及内力的控制及合龙过程的体系转换,是施工中难度很大且很关键的工作,它需要采取正确的结构分析理论和方法、规定严密的控制要求确定合理的施工方法和工序、实施严格的施工组织才能确保取得成功。
本桥施工控制的基本思路是,主、边跨钢箱梁悬臂拼装以无索区索塔的下横梁上正中间的钢箱梁块件为基准,辅助跨钢箱梁支撑拼装以过渡墩的永久支座上的钢箱梁块件为基准,各自向着合龙方向逐步进行钢箱梁拼装施工。在拼装过程中,通过跟踪分析,逐步对标高、索力、内力、轴线、对接焊缝进行控制,保证斜拉桥主梁的顺利合龙。
按照施工控制的基本思路,在主梁施工过程中,本桥着重解决了托架和排架上基准块件精确定位、标高与索力及缝宽三者之间的综合控制、主梁轴线控制等主要问题,最终确保了斜拉桥主梁的顺利合龙。
本桥所采用的钢箱梁和斜拉索的安装、合龙段的安装、双悬臂状态临时抗风设施的设置、悬拼过程临时减震机构的设置、边跨永久配重体系的配置、斜拉索两步一次张拉、悬拼匹配等方案、方法,所确定的悬拼、辅助跨拼装、合龙段的安装施工程序等工序,以及严格实施的定位精度、张拉设备标定等控制要求为施工控制的顺利进行提供了充分有力的保证,在国内是少有的。
对于本桥主梁施工中的体系转换,其关键点在于如何在中跨合龙时在主跨结构由单悬臂状态向斜拉桥五跨连续状态转换过程中控制温度变化以保证整个体系转换过程中不出现内力对正在焊接中的合龙段施工质量产生影响。
在以索塔为中心的主梁对称悬拼施工中,为了控制悬拼过程中不平衡重量对索塔所产生的弯转力,本桥在塔中心顺桥向两侧的下横梁边缘处各设置了一排拉压临时支座。其中抗压性能由钢支座提供,钢支座支承在下横梁顶的预埋钢板上。在合龙前,钢支座与箱梁底面和下横梁须面是焊连在一起的,以限制主梁结构在悬讲过程中的漂浮不稳;抗拉性能则由固定在钢支座和下横梁上的预应力钢绞线提供。
本桥在中跨合龙过程中采用以下措施解除拉压临时支座,在不影响中跨合龙段施工质量的前提下,完成斜拉桥的体系转换:
1.经过合龙前24小时的昼夜观测,选定温度较均匀的晚上10:00~第二天早上7:00稳定时段完成合龙段主要安装工作,并在主要焊缝完成后的本时段内迅速解除拉压临时支座;
2.在合龙口设置临时劲性骨架,以限制合龙口两端的竖向错动;设置斜交叉对拉葫芦,以限制合龙口的横向错动。在合龙段钢箱梁纵向两端,以及合龙口两侧主梁悬臂端设置抗拉压临时栓接加强件,以抵抗焊缝口的变化趋势;
3.在解除临时支座的抗拉作用时,先剖开钢支座与下横梁预埋板之间的焊缝,然后解除钢绞线。在解除钢绞线过程中,采用汽车压重的方法阻止主梁的突然上上浮。当钢绞线全部解除后,汽车逐步开走,使主梁缓慢上浮,以使主梁平稳完成其所积蓄的弹性能量的释放。
南京长江二桥南汊主桥于2000年7月9日清晨7:00全部解除临时支座而完成斜拉桥合龙的全部关键施工,标志全桥顺利合成,合龙误差几乎为零。南京长江二桥斜拉桥的施工控制系统,充分地保证了斜拉桥主梁悬拼、合龙、体系转换施工安全顺利进行。主梁全部合龙后,合龙段、全斜拉桥线形平顺、美观(见图31,照片)。根据桥面铺装前对斜拉桥的全面测试结果,理论计算和实测值对比情况是,主梁标高最大误差在6cm以内,轴线最大偏差在0.9cm以内,塔顶位移最大差值为0.7cm,索力最大误差在索力的5%以内。其他情况,索塔、主梁应力完全符合设计要求。对于如此特大跨度和复杂体系的斜拉桥,这样的成果达到了国内外斜拉桥施工的非常高的水平。
九、3年短工期高标准施工质量的严格保证
南京长江二桥是在原南京长江大桥建成32年后建设的、南京市跨长江的第二座大桥。原南京长江大桥早已远远无法满足南、北交通的需要。南京长江二桥的建设任务迫在眉睫。原南京长江大桥举世闻名,南京长江二桥必须以高标准、高质量创立更佳声誉与之相对应因此,在短期内高标准完成南京长江二桥的建设是摆在桥梁建设者面前艰巨而光荣的任务。
南京长江二桥南汊主桥于1997年10月6日正式开工,于2000年7月9日全桥顺利合龙,主桥施工时间为2年9个月,主桥施工质量完全满足业主精品工程要求。在短期内使规模巨大的工程高质量地完成,除了采取加大投入、充分发扬拼搏精神等措施外,非常重要的还是要在工艺技术、施工组织方面深挖潜力。为此,在南京长江二桥南汊主桥的施工中,采用了许多新工艺、特殊工艺是成功的关键。
南京长江二桥南汊主桥下部构造即A标段施工的最终质量评定得分为97.6分,为国内最高水平,其上部构造即B标段施工还未被最终评定,但有关专家已给予了高度评价和肯定。南京长江二桥南汊主桥施工成果的取得,得益于先进的管理、先进的工艺技术和先进设备采用的巨大共同作用。

![]() |
![]() |
































