新型城市轨道动车组制动系统方案设计
摘 要: 为了解决国产新型城市轨道交通车辆的关键技术之一 制动系统,作者根据在200 km/ h 电动车组制动系统研制工作中积累的经验,提出了新型城市轨道电动车组制动系统的设计原则,并拟定了适用于新型城市轨道电动车组的制动系统设计方案。该方案能满足不同要求的城市轨道电动车组。关键词: 城市轨道车辆, 电动车组, 制动系统采用有轨交通缓解大中城市日益严重的城市公共交通问题已逐渐成为共识。国家已开始有计划地开发新型城市轨道交通车辆。城市轨道交通大多采用动力分散的电动车组。上海铁道大学根据几年来在200 km/ h 电动车组制动系统研制[ 1 ]工作中积累的经验,以及城市轨道电动车组的特点,设计了城市轨道电动车组的制动系统。
1 设计原则
新型城市轨道电动车组制动系统应具有如下功能:(1) 常用制动,即动力制动与空气制动一起作用;(2) 紧急制动,仅由空气制动作用;(3) 适应ATP 操作;(4) 制动力无级调整;(5) 动力制动力与空气制动力自动配合,空气制动力= 所需制动力-动力制动力;(6) 防冲动作用;(7) 防滑功能;(8) 空重车自动调整;(9) 充分利用动力制动的滞后充气功能;(10) 系统自检并显示;(11) 故障导向安全;(12) 备用制动控制;(13) 停放制动。
2 方案设计
城轨电空制动系统是微机控制的模拟式直通电空制动系统。如图1 所示,该系统由制动控制系统和基础制动装置组成。
2. 1 制动控制系统
该系统由制动信号发生与传输部分、微机制动控制单元(MBCU) 、气制动控制单元(PBCU) 和转向架制动控制单元组成。
2. 1. 1 制动信号发生与传输部分该部分主要由制动控制器、调制及逻辑控制器、制动指令线等组成[ 2 ] ,其主要任务是产生制动信号并将信号传递到各车辆的MBCU 或PBCU 。常用或紧急制动指令,是由司机操纵制动控制器产生的,根据总体设计要求,制动控制器也可与牵引控制器合二为一。在司机室,另有紧急制动按钮开关、停放制动开关和备用制动切换开关等。

图1 微机控制的模拟式直通电空制动系统
调制器用于将制动控制器的指令转换成相应的脉宽调制信号。逻辑控制器根据司机的操作,通过逻辑电路,使指令线在相应的工况下发出相应的指令信号。它还同时接收ATP 发出的指令。制动指令线主要有:①PWM 线,2 根,传递常用制动信号模拟量至各车的MBCU 。
② 紧急制动线,2 根,其中1 根为开关线,另1 根为回线,前者串接了各个控制紧急制动的开关,如司机紧急制动按钮开关、总风欠压开关等,后者将紧急制动指令送至各PBCU 。紧急制动为失电制动。
③ 制动/ 运行信号线,列车处于制动态态时为DC110V 高电平,处于运行状态时为低电平。
④ 停放制动指令线,当需要施行停放制动时,受司机控制,处于DC110V 高电平。
⑤ 强迫缓解指令线,司机控制列车强迫缓解时,处于DC110V 高电平。
⑥ 缓解不良指令线,当某辆车的制动缸缓解不良时,通过该车的MBCU 使指令线处于DC110V 高电平,供牵引控制单元进行联锁控制,以防擦轮。
⑦ 制动力不足指令线,当列车施行常用全制动(或接近常用全制动) 时,若MBCU 检测到制动力不足时,则使其处于DC110V 高电平;通过调制及逻辑控制器切换为紧急制动,以导向安全。
2. 1. 2 微机制动控制单元MBCU
MBCU 是微机控制直通电空制动系统的关键部件,它主要用来完成如下工作:接受制动指令、空重车信号和速度信号;根据列车运行速度、车重和常用制动指令计算所需的常用制动力;按充分发挥动力制动能力的原则, 进行动力制动与空气制动的配合控制;常用制动时进行防冲动控制,提高舒适性;实现拖车利用动车动力制动能力的滞后充气控制;检测轮对速度,进行防滑控制;检测制动系统状态,自动记录并显示故障信息[3 ] 。
2. 1. 3 气制动控制单元PBCU
PBCU 是由EP 阀、紧急电磁阀、空重车限压阀、中继阀、强迫缓解电磁阀、传感器等组成的气动元件集成箱。它是将制动指令由电信号转变为相应空气压力信号的部分。它与MBCU 一起构成微机控制直通电控制动系统的制动缸压力控制。其中EP 阀用于将电信号转换成相应的空气压力信号;中继阀将该压力信号进行流量放大后,把压力空气送至转向架;紧急电磁阀在紧急制动时失电,同时将压缩空气通过空重车限压阀直接送至中继阀;强迫缓解电磁阀在缓解发生困难时用来进行缓解控制;传感器用来反馈压力信号,供MBCU 采样控制。
2. 1. 4 转向架制动控制单元
由转向架中继阀、防滑电磁阀和速度传感器组成。转向架中继阀用于进一步将PBCU 中继阀送来的空气压力进行流量放大, 以提高制动缸充气速度。速度传感器用于检测轮轴转速, 以便MB CU 进行防滑控制。当MB CU 检测到某轴发生滑行时, 控制该轴的防滑电磁阀适当排除制动缸压力空气, 以降低该轴的制动压力, 防止车轮擦伤。
2 . 2 基础制动装置
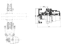
基础制动模式可根据城轨动车组车型的不同、减速度要求的不同进行选择, 常用的有踏面制动和盘型制动2 种方式。 城轨电动车组的踏面制动装置应采用带有闸瓦间隙自动调整装置的单元制动缸, 对应每个车轮安装1 套单元制动缸。为保证动车组在坡道上能安全停放, 每个轮对上应安装1 套停放制动装置, 停放制动装置可与单元制动缸合成一体, 成为带停放制动的单元制动缸。图2 所示为适用于踏面制动的带停放制动和不带停放制动的单元制动缸。

图2 适用于踏面制动的单元制动缸
在轴重较大且减速要求较高的电动车组上, 如果安装空间容许, 可以考虑采用盘形制动装置。拖车可采用轴盘式盘型制动装置, 动车可采用轮盘式盘型制动装置或仍采用踏面制动装置。图3 所示为轴盘式盘型制动装置和盘型制动用的单元制动缸( 不带停放制动) 。图4 所示为轮盘式盘型制动装置和盘型制动用的单元制动缸( 带停放制动) 。
图3 轴盘式盘型制动装置及单元制动缸

图4 轮盘式盘型制动装置及单元制动缸( 带停放制动)
2. 3 备用制动控制系统由备用控制器、备用制动指令线和备用制动控制单元等组成,为简单的直通电空制动系统。当微机控制直通电空制动系统发生故障后,司机可利用该备用制动控制系统使列车低速运行,以便将旅客运送到下一车站或将列车开回车辆段。备用控制器由司机操纵可产生3 个制动级别指令,该指令为DC110V 高电平信号,通过备用制动指令线,将指令传至各车的备用制动控制单元;备用制动控制单元通过硬件电路控制EP 阀开闭来实现制动或缓解。备用制动为纯空气制动,制动力仅考虑空重车限压。
3 结 论
以上的制动系统方案是可行的,能适用于各种城轨电动车组。其中的关键部件,如PWM 信号传递、EP 单元的控制等已在200 km/ h 电动车组制动系统中采用。实际应用效果良好,证明上述方案是可行的。
参考文献:
[ 1 ] 吴萌岭,姜靖国,应之丁等. 我国高速电动车组系统的研究[J ] . 铁道车辆,1999 , (4) :15.
[ 2 ] 陈龙安,吴萌岭,姜靖国等. 高速电动车组制动用电器信号及其传送[J ] . 铁道车辆,1998 , (8) :21.
[ 3 ] 胡口波,龙海涛. 模糊控制在200 km/ h 电动车组制动系统电空转换装置中的应用[J ] . 铁道机车车辆,1998 , (4) :31

