与无缝线路的实践
提 要: 城市轨道交通是从根本上缓解大城市交通紧张的一个重要手段。本文以上海建设明珠线为例, 介绍了建设城市交通高架桥梁的特点及其具体措施。并重点介绍了城市轨道交通桥上以及九江长江铁路桥上铺设无缝线路的实践和经验。主题词: 城市轨道交通; 高架铁路; 无缝线路; 桥梁;1 城市轨道交通高架桥梁的特点
目前我国城市轨道交通是电力驱动的车辆、走行在两根钢轨上、线路封闭、客运为主。它与公路交通相比, 具有占地少、运量大、快速、安全、能够利用电能、环境污染少等优点, 是根本上缓解大城市客运交通紧张的一个重要手段。以国际现代化城市首屈一指的纽约市为例, 1998 年该市所属的城市轨道交通(当地称C ity Subw ay) 线路总长714 英里(1 148km), 468 个车站。它通过换乘站与郊区铁路、公路网、轮渡等组成整个纽约市四通八达交通运输网络。在纽约市中心区曼哈顿岛, 四面皆水, 岛内高楼大厦密布, 地价特别昂贵, 轨道交通全在地下, 成为地下铁道。出曼哈顿岛, 跨越东河等海湾, 到达皇后区等地, 即爬出地面, 成为高架桥梁上的轨道交通。因这些地区繁荣稍逊, 地价稍廉。地铁造价约为高架轨道的三倍, 技术经济比较的因素起了作用。世界其他大城市如莫斯科等, 轨道交通大部在地下, 有时又爬出地面架空, 均是灵活掌握。
我国最大城市上海, 南北地铁一号线已经通车, 东西地铁二号线已基本建成。该市的本世纪末高架桥最大的公共交通基础设施——轨道交通明珠线(原称三号线) 一期工程, 得到国务院正式批准立项, 工程进展迅速。明珠线全长62 km 。一期工程24. 97 km , 其中高架21. 45 km, 地面3. 52 km, 利用原有铁路沪杭内环线和淞沪支线共18 km 。车站19 座。2000 年时可满足日客流量72. 9 万人次, 最小行车间隔5. 5 分钟, 将是我国第一条建成的城市高架轨道交通。国内大城市利用原有市区内铁路老线, 改建成高架轨道交通, 是我国发展轨道交通的主要趋势。城市轨道交通架空桥梁绝大部分为矮墩、小跨、桥下无水。采用预应力混凝土简支箱梁, 双线整体式, 外形美观, 见图1。跨度20 m 至30 m。双柱或独柱墩。基础一般用直径1m 以下的钻孔桩, 环境允许, 噪音不受限制, 亦用打入桩。入土35 m 以内, 用厂制或就地制造的边长30 至40 cm 方桩; 超过35 m 用高强预应力PHC 管桩, 管径60 cm (最大80 cm), 采用C80 高强混凝土, 离心成型、高压蒸养。用7. 2t 垂锤锤击, 亦不易震裂。高架桥梁要求造型美观, 造价低廉, 耐久性好, 养护简单, 施工期短, 施工时噪音、污染、对环境、交通等干扰少。
一般城市轨道交通, 编组列车6~ 8 辆, 轴重16~ 18 t, 最高车速60~ 80 km / h。线路标准低于铁路干线, 区间正线最小曲线半径400 m, 最大纵坡30‰ 。车站设在高架桥上, 困难地段车站可用曲线半径800 m , 坡度5‰ 。正线竖曲线半径5 000m, 困难地段及车站端部可用3 000 m。城市轨道交通高架桥梁坡度起落频繁, 弯道亦多, 给中线定位, 线型控制, 带来较多工作量。不可避免地高架桥梁会跨越一些河流、铁路车站、斜交既有公路干线等, 需要采用大跨桥梁结构。如上海明珠线跨越现有内环高架公路(四车道), 斜交17° , 因此新建再高一层的轨道交通桥梁跨度必须大于百m。新桥要保证最小桥下净空, 一般大于 4. 5m; 本身又成为轨道交通线路的制高点, 所以必须尽量压缩桥梁建筑高度(梁高)。连续梁、刚构桥、结合梁、中承式拱桥、带加劲拱连续梁等多种特殊的桥梁结构形式, 均有其用武之地。遇有河流, 水上施工技术亦将一显身手。发展城市轨道交通, 给我国建筑市场、铁路工业生产、装备技术增辟一个新的广阔领域。
2 上海明珠线中山西路桥工程
在我国第一条城市轨道交通上海明珠线工程中, 大桥工程局承建了一座连续梁总长度在全线中最大的中山西路高架桥梁, 主桥跨度80+ 112+ 80 m, 连续总长272 m。单箱单室三向预应力混凝土连续刚构, 双壁式主墩。位于直线和缓和曲线上, 桥上有变坡。箱梁底宽5. 2m, 顶宽8. 8m(缓和曲线段9. 06m)。顶板厚25~ 50 cm, 悬臂顶板厚20~ 45 cm, 底板厚25~ 100 cm, 竖直式腹板厚30~ 80 cm , 箱梁高5. 6~ 2. 3m。双壁主墩之壁为矩形断面 5. 2×1. 1m, 两壁净距3. 8m, 墩高15. 5m。基础为<1m ×72m 钻孔桩17 根。大桥局施工的此一标段同时还包括45 孔30m 简支箱梁和二孔45m 结合梁。中山西路桥主体结构由铁道部第三勘测设计院设计, 标段内其他工程及桥面轨下基础等由上海铁路轨道交通工程设计研究院设计。该标段位于沪西南徐家汇繁华地区, 地下管线路很多。各墩周围要先挖地沟2m 深, 检查地下有无管线路。在挖43 号墩地沟深2m 后, 雷达扫描, 发现异状, 继续挖深至3m, 发现一混凝土箱涵, 内有两路220 kV, 两路35 kV, 一路10 kV 高压电缆。避免了一次重大断电恶性事故, 得到了明珠线工程建设指挥部的表扬。钻孔桩施工采用干地面施工法, 钻碴由罐车运至指定地点堆弃。泥浆掺聚丙酰TM A 附加剂, 改善性能, 沉淀少, 全部钻孔桩均通过声波检测, 符合? 类桩质量标准。
双壁主墩钢模板用无拉杆整体式, 分段制造, 混凝土表面光洁。连续刚构的两个双壁主墩为压弯受力主要构件, 参与刚构节点弯矩分配, 对扩大主跨跨距、降低跨中梁高起到关键作用。为此双壁墩内设有强大的竖直向预应力筋, 每墩有48 根<25 mm 冷拉? 级无粘结预应力筋, 轧丝锚头。下端埋入承台, 直至梁顶。套在高压聚乙烯塑料管内, 涂1 号建筑油脂, 接头用特制铁皮管。张拉力每根292 kN , 计算延伸量66. 3mm, 实际检验延伸量误差均不超过6% 。长距离无粘结情况良好。主梁0# ~ 1# 节段总长12 m , 连同双壁墩顶高 0. 5m 一起在墩旁托架上现浇, 约200m 3 混凝土, 用两台混凝土泵, 乘夜晚低温, 温度变化小时, 用10 个h 连续浇灌完毕。由于选择了适当的混凝土坍落度和初凝时间, 并加强震捣, 保证了混凝土质量。密布的纵横向预应力波纹管道, 自重轻, 柔轻易变形, 采取了加密的定位网钢筋, 制止上浮。0# 、1# 节段模板下承重支架为三排<250 mm 钢管立柱, 支承在混凝土承台上, 避免了不均匀沉陷。
主梁其余节段, 长3m 与4m, 采用双侧三角架挂篮对称悬臂浇筑, 各有14 节段。中山西路桥悬臂挂篮因规模较小, 采用三角架结构, 竖直吊杆, 整体滑动模板。挂篮自重较斜拉杆式挂篮稍大, 仍在主梁安装设计应力许可范围。竖直吊杆减少梁上开孔数量, 同时亦便于随时准确调正模板高程, 满足刚构悬臂浇筑严格的线型要求。箱梁顶板、底板纵向预应力筋为15-7< 5 mm 钢绞线, 内径93 mm 波纹管制孔, 两端张拉, 张拉控制力2 734 kN , 采用400 t 千斤顶。腹板束7-7<5 mm 钢绞线, 内径70 mm 波纹管, 两端张拉, 张拉控制力1 276 kN , 采用200 t 千斤顶。以上均用0VM 群锚。竖向预应力筋采用冷拉? 级粗筋, 轧丝锚具, 无粘结, 张拉控制力292 kN 。顶板横向束4-7<5 mm , 用BM15-4 锚具, 内径20×70 mm 扁波纹管。除底板预应力束外, 所有预应力束均随悬臂节段延伸逐步张拉, 以满足主梁悬臂安装应力的需要。大跨预应力混凝土箱梁控制悬臂浇筑高程线型, 十分重要。特别是本桥无碴无枕, 没有道碴层可以调整轨面高程。所以事先根据梁顶设计高程、静活载挠度、恒载及预应力、收缩徐变挠度、挂篮重量挠度、预留桥墩基础沉降量, 计算出箱梁顶立模高程, 制成图表。施工单位再外加一定的挂篮模板非弹性压缩量, 控制节段模板实际高程。施工过程中分混凝土灌注前后及张拉纵向预应力束等多个工序进行观测控制。
各节段梁顶设置固定的标高观测点。悬臂施工每个节段混凝土由于本节段混凝土重、预应力影响, 挂篮重引起的本节段及所有以前的各节段的挠度影响值, 均事先算出, 施工时逐段分多个工序进行全桥所有节段高程测量, 进行对比分析。由于头几个节段挠度影响值甚小, 在6 至7 个节段以后, 根据实测值与计算值系统比较, 适当修正挠度系数, 以保证顺利合龙与良好的桥面线型。每个节段约需7 至10 天。全桥共三个合龙段, 各长2m, 先边孔14 个节段与边孔另一端的23 m 长的就地现浇梁合龙, 再主跨112 m 跨中合龙。
3 轨道交通桥上无缝线路
轨道结构采用焊接长轨无缝线路是铁路现代化的一个重要标志。它提高线路质量, 使旅客乘车平稳舒适, 降低车辆与轨道磨耗, 减少线路养护维修工作, 避免车辆在钢轨接头处的撞击噪音等。虽然一次性投资稍大, 但其优点显著。城市轨道交通无疑将采用无缝线路轨道结构。
高架桥上无缝线路, 不同于路基上的无缝线路。因桥梁本身在温度和载荷影响下, 随时在伸长缩短, 而路基大地是无长度变化的。所以桥上无缝线路钢轨除与路基上一样, 承受因外界气候温度变化热胀冷缩产生拉、压应力外, 还要承受因桥梁长度变化影响产生的附加应力。这附加应力来自桥梁本身温度伸缩、车辆制动(牵引) 力、梁部挠曲变形等。需要根据桥梁的跨度、钢轨与桥面的扣紧力、气候温度变化幅度, 活载的大小和桥梁下部结构纵向水平刚度等进行计算。
长轨温度应力及桥上附加应力等的总和应在钢轨承受能力允许范围以内。桥梁无缝线路长轨水平附加力还要通过梁部、支座, 传至桥墩上。桥墩与基础需要计算此项附加水平力。轨道交通高架桥采用多联多跨连续梁, 上述桥上钢轨附加力会相应增加很多。如两联三孔连续梁, 每孔30 m , 从一联的固定支座到另一联的固定支座之间的“ 温度伸缩跨度”长达90 m, 接近无缝线路不设钢轨伸缩装置的极限长度。而钢轨伸缩接头是无缝线路运行养护的薄弱环节, 应尽量减少。假如改为六孔30 m 简支梁, 无缝线路即可全长通过, 不需钢轨伸缩接头。所以城市轨道交通上部结构一般采用大批短跨简支梁, 如同国外高速铁路架空桥梁均采用多跨简支梁的理由一样。多跨简支梁还可使墩梁结构标准划一, 便于施工、养护、管理。简支预应力梁就地现浇, 根据施工前后顺序, 需有若干孔梁纵向预应力筋设体内自锚, 其余各孔可在梁端张拉纵向预应力筋, 然后混凝土封端。

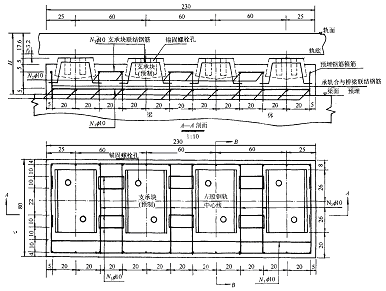
图1 轨道交通简支梁断面示意图
有时根据地形位置的需要, 或为了便于悬臂浇筑施工方案需要, 采用少量较大跨度的连续梁结构。这时要对桥上无缝线路纵向力进行特别计算。国际铁路联盟(U IC) 曾有规定桥上无缝线路钢轨附加拉应力不要超过92M Pa, 压应力82M Pa, 西欧最大温度伸缩跨度钢梁做到60 m, 混凝土梁做到90m。有的国家比90m 还大。国内亦有类似的建议值, 分别为拉应力81M Pa 、压应力61M Pa 与跨度40 m , 国内亦有少量跨度经过详细计算后, 超过此限值, 仍不设钢轨伸缩接头。控制无缝线路钢轨应力主要是为了防止受拉断裂与受压纵向屈曲, 后者胀轨跑道危害很大, 特别是南方夏季, 桥上钢轨温度一般比大气温度高出20℃ 。城市轨道交通无缝线路的钢轨是重要承重部件, 基于延长使用寿命(曲线上轨头侧面磨损较快), 强度稳定等安全可靠性、降低噪声、供电回流通路, 减少杂散电流等方面技术经济因素, 采用比较重型的60 kg/ m 优质钢轨, 提高韧性和刚度, 十分必要。所以过去称城市轨道交通为“ 轻轨”交通, 如指钢轨重量已不相宜。在频繁的车辆轮重作用下, 钢轨挠曲起伏会产生少量的纵向位移。城市轨道交通坡度大, 列车制动频繁, 更增加轨道爬行。接连多孔大坡道的桥梁, 需要选择下部结构纵向刚度较大(墩身低矮) 处, 加大钢轨扣件锁定阻力, 控制爬行量, 减少全线总体桥墩加固钢筋数量。桥上无缝线路桥面结构比较牢固。城市交通客运为主, 车辆空载自重亦大, 桥上掉道脱轨机率很少, 国外多不设桥上护轮轨。但城市轨道交通曲线多, 在半径较小(R ≤800 m) 的圆曲线和缓和曲线交接点前后, R ≤450 m 的圆曲线内侧, 竖曲线和缓和曲线重叠处, 反向曲线及大坡变坡地段, 重要立交桥等处, 可考虑设置简易防脱护轨, 以策安全, 同时进行观察, 取得经验。桥上无缝线路行驶的车辆、信号应有良好的自动控制装置, 线路状态应保证良好, 对提高车速, 加密车次, 起到安全保障作用。
4 铁路长桥无缝线路的实践
铁道部大桥局设计施工的九江长江铁路大桥, 全长7 675m (双线), 正桥钢梁1 806m, 四联连续梁。引桥共144 孔40m 无碴无枕简支箱梁, 跨越两岸城镇居民区, 属于重载城市轨道交通。全桥铺设无缝线路, 是国内最长的桥上无缝线路, 最长轨节 2. 66km 。1994 年9 月铁路桥面完成, 同年10 月一次性地完成8 km 长双线桥上无缝线路, 一次验收合格, 并即开通工程列车。正桥钢梁四联, 明桥面木枕, 正轨、护轨均为60 kg? m 钢轨,K 型扣件, 分压紧与不压紧多个区段, 每联钢梁的两端均设有钢轨温度调节器, 共有五处。引桥预应力混凝土梁顶设有承轨台, 平面尺寸74×80 cm, 净距20 cm, 中心距1m。每个承轨台上有正轨W J-1 型弹片扣件两组, 护轨扣件一组。弹片扣件纵向阻力分30 、40 、60N / cm 三种。北岸引桥长4. 44 km, 中部设一组钢轨温度调节器。简支40 m 箱梁预应力张拉后的弹性上拱度(扣去自重挠度) 实测平均值为30. 54mm, 徐变产生上拱度为16. 02 mm 。静活载产生挠度25. 8 mm , 稍大于设计规程规定的跨度1/ 1600 值, 因此需设半个静活载挠度值的上拱度12. 9mm 。为此曾采用灌注箱梁时预设跨中下挠度(反拱度) 的方案, 其值为30. 54+ 16. 02-12. 9= 33. 66 mm 。实际前两项值离散性较大, 故部分梁采取滞后浇筑承轨台, 适当调整各承轨台的高度。本桥弹片扣件近5 万组, 每组包括二个60 Si2M n 弹簧钢弹片, 二个M 20 轨卡螺栓, 二个<30 锚固螺栓, 一块370×150 mm 铸铁垫板及若干不同材质类型的垫板, 分别起到调整高程、绝缘、弹性缓冲、变化纵向摩阻力等作用。钢轨调离量可达40 mm 。(实际留15~ 30 mm 供养护后期备用)。轨距调整量为每轨±10mm 。九江大桥无缝线路及钢轨扣件由铁道部科学研究院设计。
施工单位在桥面完工后先铺设短轨(轨长25 m), 将所有扣件、预埋锚固螺栓等均予装置完毕, 固定好位置, 并对轨距、水平、方向等, 各项检查验收合格后, 再由短轨线路运来换铺长轨列车, 由上海铁路局换铺成全桥无缝线路。事先上海闵行铁路工务工厂将攀钢生产的U 71M n 钢轨长25m , 用连续闪光接触(电阻) 焊接长至250 m , 分层排列装在换铺长轨列车上, 分三批运来工地, 再在桥上用移动式气压焊机, 接长钢轨至无缝线路需要的长度。约2 000 t 长轨换铺时间共20 天。
九江铁路桥上设有多处自动闭塞区间, 钢轨需设绝缘接头。应用特种绝缘胶、加强鱼尾钣和高强度螺栓, 制成4m+ 4m 长的绝缘接头多段, 与基本轨等, 随换铺长轨列车运来工地, 按规定位置插入无缝线路长轨内, 是国内第一座桥上闭塞区间不受钢轨接头长度限制的特大桥梁。
九江长江铁路桥运行四年多以来, 线路状况良好, 引桥长轨爬行仅数mm 。温度调节器伸缩量亦不大, 仅十余cm 。正桥长轨因钢梁连续梁温度跨度大, 近500 余m, 温度调节器伸缩量亦大。但曾有一异常现象, 正桥最北端下行线左侧一根基本轨(最下游一根长轨), 轨长近500 m , 出现累计向行车方向(向南) 爬行20~ 30 cm, 其余三根基本轨没有爬行。此根爬行量最大的钢轨, 曾松开桥上K 型扣件的扣压螺栓, 用拉紧装置向北拉回这一爬行量。究其原因, 可能是重载列车连续上坡的长度大, 左侧机车车轮偏心甩打的力量大, 引起左侧钢轨爬行。国内另一长桥新菏铁路长坦2东明黄河大桥, 桥运行初期亦曾发生类似现象。九江长江大桥此根长轨现正如密防爬器, 予以改善, 并继续观测。
上海城市轨道交通明珠线亦是采用无碴无枕无缝线路, 是继九江长江大桥以后国内又一条长大高架桥梁上的无碴无枕无缝线路。无缝线路技术近几年来有了更多发展, 钢轨弹性扣件向多种方式配套, 弹条扣件及T 型轨卡螺栓球面接触配合等新技术得以开发, 扣件质量已有进一步提高。承轨台结构亦进一步改善, 明珠线的桥面轨下基础即是将各节短轨用定型扣件先固定在标准的数量众多的小块混凝土支承块(长35× 宽52× 高18 cm) 上, 整体吊装架立在混凝土梁桥面上, 校准好位置和标高, 然后浇筑承轨台混凝土。除九江大桥与明珠线两种承轨台浇筑方法外, 亦在研究将支承块放入桥面上预留的槽形板中, 再灌筑填充混凝土(必要时加放弹性垫板与胶套), 使支承块固定位置。这套新的工序可消除徐变影响和简化垫板调高量。承轨台亦可由方形改成长条形, 一个承轨台上放四组以上的扣件组, 见图2。承轨台之间仍保留一定间隙宽度以利桥面排水。又如取消护轨, 承轨台宽度可以比九江大桥更窄一些。国外有些桥梁将扣件直接埋设在桥面上, 取消了承轨台。

图2 轨道交通桥面承轨台及四个支承块的布置示意图
城市轨道交通适宜采用无碴桥面, 可以减少 迈出了第一步。桥梁恒载, 降低建筑高度, 减少养护工作。(桥上清今后国内大城市将蓬勃兴起修建筛石碴困难很多)、桥面洁净, 避免石碴掉落伤人。城市轨道交通, 1999 年投入试运行的上海明珠线为我国城市轨道交通桥上无缝线路作出新的重要特大桥梁采用无碴无枕无缝线路, 九江长江大桥 实践。
