浅议箱式变电站在城市轨道交通工程的应用
摘 要:介绍、分析了箱式变电站的特点、接口、技术要求和在城市轨道交通工程中的应用。关键词:箱式、变电站、轨道交通、应用
一、引言
随着我国经济的持续发展,城市轨道交通已成为解决大中型城市公共交通的首选交通工具,广州、上海、深圳、南京、天津、北京、重庆等城市都有已建/在建项目,其他还有一些城市正在处于拟建或筹建阶段,我国的城市轨道交通建设处于高速发展阶段。在我国的大中城市,不论地铁还是轻轨,都存在空间紧张、土建投资费用高、工期紧张等问题。牵引变电所作为地铁/轻轨牵引供电系统的核心,具有设备种类多、用房占地面积大和设计周期长的特点。如能将箱式变电站引入城市轨道交通建设,无疑能缩小车站规模、易于实现车站的景观造型、减少拆迁工作量、节省土建投资、大大减少现场配合量、缩短施工工期等。
二、箱式变电站在城市轨道交通领域中的应用情况
目前,牵引箱式变电站已在国外电力系统、城市轨道交通等领域获得非常广泛的应用,如在美国达拉斯地区轻轨系统的16座1500kW 和2500kW的牵引变电所采用的都是箱式牵引变电站;圣地亚哥地铁系统E1 CAJON LRT 线工程中,12 座1000kVA 牵引变电所采用的也都是箱式牵引变电站;在香港正在运营的东部铁路中,两个牵引变电所和一个分区所采用的都是箱式变电站,该箱式变电站是由当时的英国南威尔士公司制造(现在并入英国FKI集团),运行至今将近20年了。
在即将投入运营的香港西部铁路中,一个牵引变电所、一个分区所和一个开闭所采用的都是箱式变电站,该箱式变电站是由德国西门子公司供货,预计2004年开通。在国内,我国由于在这方面的起步相对较晚,一些应用相对简单,一般在集装箱里安装的仅是配电变压器及一些配套开关等主要设备,功能相对比较单一。在一些地方也有一些不同程度的应用,如城乡建筑、居民小区、中小型工厂、矿山油田以及临时施工用电等场所。
长期以来,我国一直在关注着箱式变电站的发展和应用,同时在这方面一直进行着积极的准备和技术储备。虽然到目前为止,箱式变电站在我国城市轨道交通领域中还没有实际的运营业绩,但箱式变电站的技术已发展成熟,且已经在其他国家和地区的轨道交通领域中得到广泛的应用。前不久,上海地铁公司率先在我国轨道交通领域,即上海地铁莘闵线轨道交通工程中,订购了一座由美国POWELL公司生产的牵引变电所的箱式变电站,预计在今年年底投入使用;后又在共和新路轨道交通工程中,订购了四座由美国POWELL公司生产的箱式变电站,预计在明年年底投入使用。
天津津滨快速轨道交通工程中5个牵引变电所也准备采用箱式变电站型式,预计在明年7月底投入使用。天津地铁一号线工程中也有部分牵引变电所准备采用箱式变电站型式,预计在2005年年底投入使用。
三、箱式变电站的特点
众所周知,城市轨道交通的线路规划和沿线分布的车站基本上都在城市市区内,作为一个城市的基础设施,沿线每个车站一般都有景观、造型的要求。通常传统牵引降压混合变电所的建造规模、用地需求相对较大,如果把牵引变电所(传统牵引变电所的面积约为400m2 ,箱式变电站的面积约为100m2 )与车站合建,那么为实现这些车站的景观造型,在建筑设计中难度较大;此外为满足传统牵引变电所较大的用地要求,也引起相应的拆迁工作量增大,拆迁费用、征地费用增加,同时也导致工程的难度加大。为此可将牵引降压混合变电所中的牵引变电所部分移出车站,采用箱式变电站型式,进行单独建造,而仅将降压部分(通常降压部分的面积约为100m2)与车站合建,这样就较好的解决了此问题。
在城市轨道交通工程规划中,考虑到运营初近期的客流量情况,有些车站在初近期阶段设计为预留车站,这些车站通常在远期若干年后才建造;而位于预留车站的牵引变电所由于运营需要先建造并投入运行,这样在若干年后建造车站时,随着城市经济的发展,后期车站建造的规模、具体位置或方案很可能发生变化,这样先期建造投入运行的牵引变电所如果采用的为箱式变电站就可以进行很方便的拆移,不但拆移工作量小,大大减少拆移工期,而且可大大缩短停电时间,不影响全线的行车;并且与后期建造的车站可以进行很好的协调配合。
另外,箱式变电站特别适用于工期非常紧的城市轨道交通工程。若采用传统的牵引变电站,施工安装、各设备间的调试周期比较长,现场配合工作量大;而箱式变电站是在工厂进行装配、调试,现场配合工作量比较小。
实际工程应用中,箱式变电站是将传统牵引变电所中的主要设备都集中装配在一个工厂预制的钢结构集装箱内,工程采用的箱式变电站应包括如下主要设备:
中压交流开关柜
牵引整流变压器
整流器
直流开关柜、负极柜、排流柜、钢轨电位限制装置
控制信号盘、交直流电源盘
所用配电变压器或动力配电变压器等
此外还可以在集装箱里安装普通照明装置、应急灯、电源插座、通风系统、防凝露装置、设备间互联电缆线槽等。另外,根据实际需要还可以选择安装空调、防灾报警装置、防非法进入装置等等。以上设备都是在工厂集中安装调试完后,再由工厂整体运输到变电所安装现场进行直接安装。
简单说来,箱式变电站与传统的变电所相比较,有以下优点:
将传统的变电所的尺寸减少到最小、体积和布置紧凑、占地面积少、节省投资;与常规的变电站相比,同容量的箱式变电站占地面积通常仅为常规变电站的1/4~5左右,大大减少了施工量,减少了建设费用;
完全是工厂预先制造,集中安装调试,现场影响小;工程中提高工厂化程度,减少现场安装工作量;最大限度的减少现场安装、调试对设备质量的影响;
运到安装现场时只需安装,与外部的设备连接即可,现场安装工程量减至最少;
搬运拆迁方便;
与外部的接口内容少,而且简单;
适宜使用在城市环境里,易与周围其他建筑物相协调;
维护工作量少;
不受外部气候环境条件的影响。
可有效缩短现场施工工期
四、箱式变电站与其它专业接口配合内容
箱式变电站通常在工厂预先把箱体内的各个单体设备进行统一安装、连接、布线、调试完毕后,再运到安装现场,进行施工安装和与外部缆线的连接,它通常与下述专业存在着接口配合,但其接口配合的内容比较少、且简单:
1. 土、房建专业
由于箱式变电站安装在户外,不需要专门的设备用房,仅需要土、房建专业提供安装用的混凝土基础以及敷设箱外电缆用的电缆沟等,这样就大大简化了两个专业的配合工作量和缩短了配合周期。
2. 供电专业
中压环网供电电缆:
需要在安装现场把外部的来自其它变电所的交流电力电缆与箱式变电站中对应预留的缆线位置进行连接。
导引线电缆和双边联跳电缆:
需要在安装现场把外部的来自其它变电所的导引线和双边联跳电缆与箱式变电站中对应预留的缆线位置进行连接。
3. 接触网专业
直流1500V正馈线回路:
需要在安装现场把外部的连接接触网上网电动隔离开关的电缆与箱式变电站中预留的缆线位置进行连接。
牵引回流回路:
需要在安装现场把外部的连接接触网回流箱的电缆与箱式变电站中预留的缆线位置进行连接。
4. 车站动力、照明专业
箱式变电站内部的动力、照明、布线、配电、开关、电源插座、空调设备等全部在工厂进行集中装配、调试,到现场后通常只需连接400V电源。
5. 防灾报警专业
箱式变电站内部的防灾报警设备如烟感、温感等全部在工厂进行集中装配、调试。
6. 与杂散电流防护专业
在安装现场把外部的连接杂散电流收集网的电缆与箱式变电站中预留的缆线位置进行连接。
五、箱式变电站箱体的总体结构
箱式变电站应设计成能够安全进行正常使用、检查和维护。
变电站应结构简单、性能可靠、运行安全、实用美观、便于试验和维修,外观应同环境相协调。
1. 箱体内供电设备平面布置的一般要求
每台整流变压器应有单独的隔间。平面布置设计时应在符合GB及IEC相关标准的条件下考虑箱内设备的运行巡视及维修的空间。箱内应设置相应的照明设施(包括正常照明和应急照明及维修照明)、通风设施、消防设施以及通信、网络接口设施和用以保证电气设备正常运行的环境要求。
2. 箱式变电站的箱体结构和配置
箱体的结构设计应满足防雨、雪、防渗漏、防腐蚀、防尘、防小动物进入、防盗、抗腐蚀等要求。箱体为带操作走廊(工作人员在箱内操作)。根据现场情况,箱式变电站可以是一个预制的整体型箱壳,也可以是多个预制的箱体组成的分体型箱壳。箱体应有足够的机械强度,在运输、安装中不应发生变形。应力求外型美观、色彩与环境协调。箱体底座应能进行临时安装和永久安装。箱体顶部不能积水、积物,并应有一定强度。箱体内设架空地板,地板应能承受各设备的荷载。
箱体应方便吊装。各单元的结构应牢固,吊装时不致引起变形和损伤。箱体应考虑箱体内各设备间采用电缆连接,箱体结构应保证电缆敷设空间需要。箱体应有通风孔和隔热措施,必要时可采用散热措施,以防止内部温度过高。高低压开关设备小室内的空气温度应不致引起各元件的导体温度超过相应标准的要求。同时还应采取措施保证温度急剧变化时,内部无凝露现象发生。箱壳应有防尘措施。变压器室应以自然通风为主,变压器室应通风良好。箱式变电站噪音水平不应大于规定的变压器噪音水平。箱壳不论采用金属的或非金属的材料,箱体金属框架均应有良好的接地,有接地端子,并标明接地符号。外壳防护等级的分类应符合GB 4208的规定。高低压部分温升符合GB 763和GB 7251的有关规定。应在外壳的明显处设置铭牌和危险标志。
3. 主要设备配置
根据城市轨道交通工程的特点,考虑到变电所运营管理无人值班方式,箱式变电站通常安装有下述设备:
中压交流开关柜
牵引整流变压器
牵引整流器
直流开关柜、负极柜、轨电位限制装置
排流柜
配电变压器
交直流电源系统
综合自动化系统,包括与电力监控的接口等
空调设备
防凝露装置
防灾报警装置
防盗系统
六、投资分析
通常,根据一个传统牵引变电站(牵引变电所部分)的规模,其费用一般由以下几部分组成:购地费、土房建费用、牵引变电所内各主体设备费、安装费、动力照明设施费用、防灾报警装置费用等,其中牵引变电所内各主体设备及其安装费约为960万元人民币。
据了解,现在上海莘闵线即将采用的箱式变电站设备费约为1000万元人民币(牵引变电所部分),但该费用包括传统牵引变电所内所有的设备费及其安装费,如箱体内的照明设施费用、防灾报警装置费用,另外它没有土房建费用等。从以上简单的对比可以看出,单一的箱式变电站的设备及其安装投资与常规变电站相比,略高一点,但从综合的角度来看,箱式变电站更具有优势。
七、箱式变电站方案
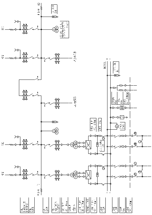
下面就以一个典型的牵引变电所主接线(附图1)为例,进行箱式变电站设备布置方案(附图2、3),同时以传统变电站的布置方案(附图4)作对比。 从下述两种布置方案中可以看出,常规的牵引变电站的占地规模约为410平方米,而采用箱式变电站的占地规模约为110平方米,从这方面也可看出箱式变电站的优越性。

图1 典型牵引变电站的主接线

图2 箱式变电站布置方案(一)

图3 箱式变电站布置方案(二)

图4 常规的牵引变电站的布置方案
八、需进一步研究的问题随着我国技术的进步和经济的持续发展,从长远的发展趋势上看,功能日益完善的箱式变电站将以传统变电所无法比拟的优点,将成为今后一个时期内我国的城市轨道交通中牵引变电站的一个发展趋势。与传统的牵引变电站相比,箱式变电站无疑代表着技术的较高发展水平,它不仅涉及有交流设备,还涉及有直流设备。但是箱式变电站并不是仅仅的把一些传统的牵引供电设备移到普通的集装箱中那种简单的概念,无论其箱体技术如结构、强度、配置,还是牵引供电设备的选择以及与箱体的配合等,都牵涉到很多方面的综合知识。因此还需要对箱式变电站进行深入的研究,同时就箱式变电站的国产化问题进行专门的研究,从而使箱式变电站广泛的应用在我国的城市轨道交通上。
文章出处:中国交通运输协会城市轨道交通专业委员会首届中青年专家论文集

