芳村车站梁板内力探讨
摘 要:本文通过研究广州地铁芳村车站结构中纵向肋梁在板内弯矩、剪力分配的影响,提出了纵向肋梁刚度对板带弯矩、剪力分配的若干看法。关键词:芳村车站、梁板内力、弯矩剪力
随着我国经济建设的高速发展,全国各大城市竞相开展地下铁道工程的建设与规划,地铁这种大型城市轨道交通工程必将日新月异,迅猛发展。我国地下铁道工程建设起步较晚,仅北京、上海两地建成通车,广州、南京等其它城市尚在建设与规划中,目前有关地铁建设的法律、法规还不健全,无系统配套的专业规范,设计中多参照相关工民建、铁道工程及市政工程等专业的规范进行设计。在我参加的上海地铁及广州地铁工程设计工作中感到,由于地铁结构的特殊性,常遇到不符合现行相关专业规范的情况,给设计工作的顺利进行带来困难。本文拟就芳村车站中纵向肋梁板结构在弯矩、剪力方面的影响提出一些看法,以期对地铁设计提供一定的参考。
1 问题的由来
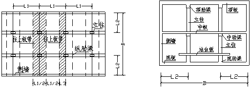
广州地铁芳村车站采用矩形箱体的结构型式。各层板在立柱支承处均设置纵向肋梁以增强地铁车站的纵向刚度,改善结构板的受力情况,结构布置如(图1.l)及(图1.2)。

图1.1地铁车站平面图 图1.2地铁车站剖面图
此种结构的内力分析困难在于板内力的确定,在工程设计中常采用等代框架法。该方法将三维空间结构简化为二个方向的平面框架体系,亦即取纵向往跨长度ll范围内的各层梁板、侧墙(化为等代构件)与立柱组合为平面框架。在求解出各等代构件的内力后,通常参照给水排水结构设计规范中无梁板水池的规定,划分柱上板带和跨中板带,将等代框架的计算弯矩以板带分配系数进行分配,从而确定各板带的内力,并进行截面设计,但现行给排水规范中的这项条文是针对无梁板结构的,而工民建等规范中均无与上述地铁结构相适应的条文可供参照,那么在边支承为墙体无挠曲变形,立柱上有单向肋梁的结构型式下,板中内力沿纵向该如何分配?肋梁刚度对板的内力有何影响?由于板中内力变化不仅与纵梁刚度大小有关,还受到横向柱距、纵向柱跨、立柱本身刚度与梁板的刚度比,与梁板的连接方式,板与侧墙的相对刚度和连接方式、荷载作用条件等多种因素的影响。将各种因素都加以综合考虑进行分析是不现实的。故本文拟将在工作中遇到的,在一定结构条件下的芳村车站结构的顶板和中板中,纵向肋梁刚度对板带弯矩和剪力方面的分布影响作一探讨。底板因所承受的地基反力等荷载是非均布的,其受力情况将更加复杂,不在本文讨论范围内。
2 计算模式和原则
2.1 基本理论
本文计算分析是建立在古典弹性理论基础上,利用有限单元法进行数值解析,以求得板中内力的弹性理论解.在使用荷载下,大多数钢筋混凝土楼板、平板可归于中厚板之列,并按各向同性板假定,适用于用古典弹性理论分析。
其基本理论是,由弹性理论求得的弯矩和剪力的分布应:l、板内各点都满足平衡条件;2、符合边界条件;3、应力与应变,亦即弯矩与曲率成正比。
其控制方程是以板上某点(X,Y)处板的变形、板的荷载和板截面抗弯刚度表示的四阶偏微分方程(拉格郎日方程)。在实际情况下很难将这个方程解出,但使用电子计算机和有限单元法程序可以方便的求得结果。
2.2 计算手段
本文以微机结构分析通用程序SAP8432p为计算手段。该程序是以线性有限元分析理论为基础而编制的。适用于土建、水利、机械等各部门的结构静力和动力分析,是各种工程问题的强有力的解析工具。该程序开发已十多年,因其计算精度高、速度快、容量大、使用方便等优点成为我国工程界进行有限元分析的常用软件之一。
2.3 计算模型与假定
浅埋地铁车站由于受城市建筑、功能、环境、投资等多种因素的制约,其结构形式比较类似,以矩形箱体结构居多。选取广州地铁芳村车站标准结构段,作为本文的分析对象。芳村车站宽度约20米左右,车站埋深约2米,结构总高约13.0~ 15.0米左右。结构布置及板带划分,结构单元图,请参见(图1.1)(图1.2)及(图l.3)。
计算模型与假定如下:
2.3.1 将板分为交叉梁网空间结构。纵向截取五跨为计算分析单元,以保证计算的精度.每单元节点取6个自由度。
2.3.2 沿车站纵向设两排立柱及纵向助梁、立柱与肋梁为刚性连接。
2.3.3 计算模型横宽取20米,板厚取0.9米,两排立柱距边墙的计算跨度分别为l2=5.0~8.0米。纵向柱距l1;分别取为 5.0米、8.0米及 10.0米。重点讨论B=20米,l1=8.0米,l2=7.0米的情况。
2.3.4 板带划分按现行规范中无梁楼盖划分原则,取横向轴线两侧各l1/4为柱上板2.3.4 板带划分按现行规范中无梁楼盖划分原则,取横向轴线两侧各l1/4为柱上板带,剩余l1/2即为跨中板带。
2.3.5 边界约束条件。板在侧墙边按固定支承并依据等代框架计算结果,给定一个横向转角。板在纵向模型边缘按竖向滑动支座模拟,立柱下端按固定支座考虑。板内节点自由度全部释放(三个位移自由度,三个转角自由度)。
2.3.6 板按均布荷载考虑,将均布荷载按网格划为集中力,垂直作用于交叉梁网的节点上,集中节点力为100KN。 2.3.7 板上交叉梁网取为纵横1.0米进行布置。交叉梁截面特性按单位宽度计算。
2.3.8 纵向肋梁截面特性:依据肋梁刚度与单位宽度板的刚度比β取不同的比值,计算中逐次输入以探求肋梁对板带内力的影响(β=EIL/EIB)。

图1.3 结构计算简图(梁网间距:1.0m,l1=8,l2=7,B=22)
3 计算与成果分析 根据以上原则与假定,将模型划分为1500多个单元、近900个节点。经多次计算分析,通过不断改变梁板刚度比β及柱跨尺寸,对芳村车站这一结构形式梁板的内力变化有了一定的了解,得出了若干统计表。下面试对各表进行分析。弯矩分配系数与梁板刚度关系统计表 (表3.1)



2、当β=1时,即为无梁板,其分配系数取自给排水规范水池无梁板有关条文。
3、表列数值是在B=20m,l1=8.0m,12=7.0m时的计算统计结果.
表3.1为柱跨尺寸一定,纵向肋梁与板的刚度比β在取不同值时,其柱上板带与跨中板带弯矩分配系数的统计表。由此表可知,随着肋梁刚度的增加,柱上板带弯矩逐渐向跨中板带转移,柱上板带弯矩逐渐降低,跨中板带弯矩逐渐增加,其分配变化的规律为刚度比β等于6以下时,柱上极带弯矩向跨中转移速度较快,当β等于6以上变化趋于平缓,并将最终达到柱上板带与跨中板带弯矩相等。这种变化是符合总体规律的,亦即随着纵梁刚度的增加,板的受力情况由双向板最终转化为单向板。表中还显示除柱端弯矩柱上板带与跨中板带相差较大外,在跨中与墙端柱上板带和跨中板带则相差较小,均在10%以内。这主要是由于单向纵向肋梁的影响。
剪力分配系数与梁板刚度关系统计表 (表3.2)

2、表中剪力为沿纵向在墙边及梁边处的剪力值。
表3.2为柱跨尺寸一定,墙端剪力及柱端剪力在不同梁板刚度比β时的统计表。它显出了边跨墙端剪力对梁板刚度β变化时,不敏感,变化幅度很小,大多在10%以内。而柱端剪力对刚度比β变化就较敏感,这与柱端柱上板带与跨中板带弯矩变化幅度有关。其变化规律与弯矩相同,亦可以将刚度比6作为分界点。
弯矩分配系数与纵向跨距关系统计表 (表3.3)

2、横向总宽B=20m,柱距l2=7.0m,β=6。
横向柱距变化时各截面弯矩变化表 (表3.4)

2、表列各值为梁板刚度比不变情况下之值。
3、表列数值为车站总宽等于20米,梁板刚度比等于6的情况下。
表3.3及表3.4分别为给定刚度比β情况下,改变纵向柱跨横向距的弯矩分配关系和横向截面弯矩变化情况统计表。表3.3显示,随纵向跨距的增减变化,柱上板带与跨中板带弯矩分配系数与跨距成正比(与墙端矩分配系数成反比)。跨中板带则与之相反。亦显示出梁板刚度比β对跨距变化的影响,即若保持往上板带与跨中板带的分配系数,则刚度比β应随跨度的增减,作相应的增减,它们两者是成正比有关系,由表3.4则可知,横向柱距的变化对各截面位置弯矩影响较大,在给定车站宽度的情况下,边跨l2减小将引起墙端弯短下降,边跨中弯矩上升并发现负值,而柱端及中跨中弯矩值显著增加,反之亦然。由此可知柱距变化对梁板内力影响是较为显著的。由于分析手段和模型的限制,尚不能得出准确的结论,对于这种影响还需深入研究。
4 结论与展望
地铁车站结构由于纵向肋梁的设置及边支承为刚度较大的墙体,致使板内弯矩和剪力分布规律发生了较大的变化,因而在设计中不可硬性参照给水排水结构设计规范中无梁板结构的板带弯矩分配系数进行设计,以免造成设计的偏差。对于目前尚无针对类似结构的规范颁布之前,建议对地铁站顶、中板进行结构设计时,以采用空间计算分析的方法为宜。这是因为影响板带内力分布的因素太多,而结构形式又复杂多变。上述计算分析仅是对这种结构内力分布规律的一次探索,以求对设计工作提供一定参考和帮助。
通过以上计算分析我们对这种地铁结构中常见的单向肋梁板结构也得到一些有益的结论,纵向肋梁对梁板结构的内力影响不可忽视,纵梁刚度的增加将引起往上板带弯矩向跨中板带转移,但当梁板刚度比达到某一定值之后。这种变化将趋于平缓。在一种柱跨及板厚的结构条件下,必有一个最佳梁板刚度比与之对应(仅就结构受力而言,不计其它因素的影响)。板中剪力分布亦同弯矩一样,随纵梁刚度变化发生新的分布形式,设计中也应予以重视。
广州地铁芳村车站结构布置如前所述,其顶板上梁板刚度比等于5.6(梁高1.6米,板厚0.9米)及6.4(梁高l.4米,板厚0.7米),中板上梁板刚度比亦为6.4(梁高0.8米,板厚0.4米)。都是比较好的情况,此时柱上板带与跨中板带弯矩各占60%和40%,截面配筋比较均衡,施工亦方便。由此可见,在目前这种地铁结构中,合理选择助梁刚度,正确分析梁板内力,对提高设计质量是很有帮助的。
地下铁道工程建设方兴未艾,有关地铁结构设计中出现的新问题还很多,本文仅是对纵向肋梁板结构,在一定条件下内力分配规律的一点认识,这项课题的内容还很丰富,还需要进一步去深入研究。我相信随着地铁建设的蓬勃发展,对这一课题的认识将更加深入、透彻。
参考文献
[1]崔之鉴编《地下铁道》,中国铁道出版社,1984年
[2]Park,R.and Gamble,W.L,Reinforced Concrete Slabs,1980.John Wiley&Sons Pub.
[3]广州地铁一号线初步设计及施工设计资料,铁道部第二勘测设计院,1995年,内部资料
原文作者:牟 锐(铁道第二勘察设计院)

