地铁工程作业机车的非正常横向振动分析
摘 要 对某一地铁工程作业机车的非正常横向振动问题,运用动力学仿真手段进行了分析研究,提示了改善这种机车动力学性能的途径,并进一步研究了曲线通过的性能优化途径。所建立的非线性滚动摩擦旁承模型和一系复合悬挂模型能适用于类似的机车车辆动力学计算模型。
关键词 地铁,内燃机车,机车动力学,横向振动,仿真计算
地铁工程作业机车一般选用小型的内燃机车, 为简化结构,其机车二系悬挂采用滚动式旁承结构,一系悬挂采用复合式导框结构。根据现场反映,该机车的横向振动较大,安全性方面需要加以研究和改进。由于该机车的结构不同于一般的内燃机车,需要针对研究的问题建立非线性的滚动摩擦旁承模型和一系复合悬挂模型,通过理论分析和试验相结合的方法,提出改进方案。
1 机车走行部结构及动力学模型的建立
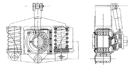
该机车由车体和两个两轴转向架组成。车体与转向架构架间设有牵引心盘和四只滚动旁承,车体的重量全部由四只滚动旁承承受,转向架构架只能绕心盘转动(见图1) 。构架通过导框及一系弹簧与轴箱相连。轴箱与轮对之间设有横向弹性止档和自由间隙。
计算模型中可以将车体、转向架构架和轮对视为刚体,并考虑车体的横移、摇头、侧滚、浮沉、点头5 个自由度,考虑构架的横移、摇头、侧滚、浮沉、点头5 个自由度,考虑轮对的横移、摇头、侧滚、滚动速差4 个自由度,共19 个自由度。车体与构架之间只有回转,因而车体的点头、浮沉和侧滚振动分别与两个构架的点头、浮沉和侧滚振动是耦合的。车体的横移振动和摇头振动与构架的横移振动也是耦合的。车体与构架间的旁承处理成非线性的干摩擦副。4 个旁承可以等效成如图2 所示的一个回转摩擦副。采用一个串联弹簧的目的是为了提高摩擦副计算精度和提高计算速度[ 1 ] 。这个串联刚度可以是一个实际结构上存在的较大的刚度。
图1 转向架俯视图
图2 旁承摩擦副模型简图
根据机车的结构和上面的假定,可以看出摩擦力矩始终与串联回转弹簧的力矩相等。由于弹簧的力矩可以根据弹簧两端的相对转角差(θ1 -θi) 求得,即M =k ·(θ1 -θi) 。当未出现摩擦力矩饱和前,θi= θ2 ;当摩擦力矩饱和时,摩擦面发生转动, θi= θ2 -Δθ。
Δθ为摩擦副转动角度。本文根据判θ1
断转动发生状态, 对相对转动速度(?-θ2) 的积
分求得,设第i 次的转动发生在ti1 至ti2 ,则累计n 次转动后的Δθ为:
nt
Δθ = ∑∫i2 ( ??θ1 -θ2) d t i = 1ti1
从而求得ti 时刻的摩擦力矩为:
k·(θ1 i-θ2 i+Δθi-1)| k·(θ1 i-θ2 i+Δθi)|< Mmax 横向也有分量。轮对与构架的纵向方向,处理成两Mi = Mmax |k·(θ1 i-θ2 i+Δθi)|> Mmax 级刚度,第一级为间隙,刚度为垂向弹簧的纵向刚根据上式,可以建立Simulink 图框模型的表度;第二级为接近刚性的刚度。一系垂向刚度为线达,如图3 所示。性垂向刚弹簧刚度。细化一系横向模型是为了精确计算轮轨相互作用力等。图5 中,g1 为轴承单向游隙;g2 为轴端弹性横动量;g3 为一系横向止档间隙;k1 为轴端档片刚度(每轴箱);k2 为一系圆弹簧横向刚度(每轴箱);k3 为一系定位止档刚度(每轴箱);c 为垂向阻尼的横向分量;Y 为轮对相对与构架的横动量。一系结构的Simulink 模型采用MA TLAB 中的函数模块方法,编制一以轮对与构架相对横移量为输入变量的函数。输出变量为横向作用力F。这样可以简一系悬挂结构如图4 所示,理论模型如图5 所化程序结构。示。轮对与构架间在横移方向上处理成三级刚度: 作用在构架上的力F为: 第一级为自由间隙,第二级为弹性垫与一系弹簧的串联刚度,第三级为接近刚性的刚度。一系阻尼在轮轨模型采用非线性模型。考虑轮轨两点接的输入(如缓和曲线的长度、圆曲线的长度、超高不触、蠕滑力与蠕滑率的饱和特性、钢轨的横向弹性, 足度以及曲线半径等)。表1 为机车的主要计算参在计算模块中考虑了轨道的横向不平顺输入、高低数。不平顺输入和水平不平顺输入,也考虑了曲线轨道
图3 旁承摩擦副的Simulink 框图
表1 机车主要动力学计算参数


图4 一系悬挂结构
图5 一系轴端横向悬挂模型
2 主要计算分析结果
2. 1 一系刚度及间隙对脱轨安全性的分析
对曲线通过影响较大的是一系横向刚度和间隙。这里以半径为297 m 的曲线轨道为例,计算了不同间隙和刚度时的动态曲线通过性能。由表2 中的计算结果可见:
(1) 当g1= g2= 0 , g3= 2 mm 时,即轴承无自横动量时,外轮的横向力的最大值为35. 44 kN , 稳态值为34. 79 kN , 比原方案大13. 04 % 和13. 88 % 。前后司机室横向加速度的最大值分别为0. 636 3 m/ s2 和0. 705 4 m/ s2,比原方案分别大25. 26 % 和46. 17 % 。这是由于没有足够的间隙,导致轮对轴箱体与转向架及车体直接刚性接触所至。
(2)当g1= 1 mm , g2 = 5 mm , g3= 2 mm 时, 即假设轴承的间隙为1 mm , 轴端弹性横动量放大至5 mm , 这时外轮的横向力的最大值为31. 99 kN , 稳态值为31. 45 kN , 比原方案分别大2. 14 % 和2. 95 % 。前后司机室横向加速度的最大值分别为0. 252 8 m/ s2 和0. 426 9 m/ s2,比原方案分别小
50. 24 % 和11. 54 % 。表明减小轴承间隙、增大弹性止档间隙能明显降低车体加速度的峰值,轮轨作用也变化不大。
(3) 当g1= 1 mm , g2 = 5 mm , g3 = 1 mm 时, 即减小轴箱框间的间隙,结果外轮的横向力的最大值为32. 705 9 kN , 稳态值为32. 121 8 kN , 比b) 分别大2. 24 % 和2. 14 % 。前后司机室横向加速度的最大值分别为0. 295 9 m/ s2 和0. 367 2 m/ s2 ,比b) 分别大17. 05 % , 和小13. 98 % 。可见减小导框横向间隙不一定有好处。
(4) 当g1= 1 mm , g2 = 5 mm , g3 = 4 mm 时, 即增大轴箱框间的间隙,结果外轮的横向力的最大值为30. 852 1 kN , 稳态值为30. 195 6 kN , 比b) 情况分别小3. 56 % 和3. 99 % 。前后司机室横向加速度的最大值分别为0. 295 9 m/ s2 和0. 367 2 m/ s2, 比b) 分别大25. 79 % 和18. 39 % 。可见增大导框间隙反而会使车体的横向加速度明显增大。
(5) 当g1= 2 mm , g2 = 2 mm , g3 = 2 mm 时, 即减小弹性轴端的横动量,这时外轮的横向力的最大值为32. 861 3 kN , 稳态值为31. 655 8 kN , 比原方案分别大4. 92 % 和3. 62 % 。前后司机室横向加速度的最大值分别为0. 288 9 m/ s2 和1. 005 5 m/ s2 ,比原方案分别小43. 13 % 和大108 % 。可见轮对的横向力有所增大,车体后司机室的横向加速度大大增加,表明减小轴端弹性间隙,会导致车体与轮对轴箱体的刚性撞击。
2. 2 轨道横向不平顺对曲线通过性能的影响
表2 主要曲线通过计算结果( R= 297 m , v= 55 km/ h)
以上计算中均假定轨道是光滑的,计算结果也便于分析和优化机车的结构参数。但当需要对该机车在实际线路上运行的动力学性能作预测时,还应考虑轨道的横向不平顺,这样可以将随机的动态分量估计出来。以下计算仍以半径为297 m 的曲线轨道为例,在光滑曲线轨道上加入一典型的轨道横向不平顺数据,并计算出整个动态结果。求得的第一位轮对的外轮横向力的最大值为38. 9 kN ; 圆曲线上的均值为28. 44 kN ; 方差为2. 47 kN 。由此,并假定在圆曲线段中部的稳定振动段近似看做平稳随机过程,因此估计最大峰值为35. 85 kN , 比不考虑不平顺时的30. 55 kN 大17. 35 % 。因此对轮对横向力而言,可以用1. 2 作为考虑横向轨道不平顺时的动态系数。
脱轨系数的最大值为0. 579 2 ; 圆曲线上的均值为0. 443 8 ; 方差为0. 036 5 。因此3σ的估计最大的峰值为0. 553 3 kN , 该值比不考虑不平顺时的0. 470 9 大17. 5 % 。因此对轮对脱轨系数而言, 也可以用1. 2 作为考虑横向轨道不平顺时的动态系数。前后车体的加速度的最大值分别为0. 626 4 、0. 761 0 m/ s2,分别比不考虑不平顺时的0. 508 0 m/ s2 和0. 482 6 m/ s2 大23. 21 % 和57. 69 % , 平均为40. 45 % 。圆曲线段上的方差分别为0. 158 04 和0. 112 1 m/ s2,3σ的估计前后平均最大的峰值为0. 405 2 m/ s2 。因此可以用1. 4 作为考虑横向轨道不平顺时的最大加速度的动态系数。
2. 3 通过三角坑的轮重减载率
根据工务对线路的安全标准(即最低标准),在直线长度2. 4 m 内三角坑的深度若超过14 mm 为严重缺陷,16 mm 为不及格。因此假定一段轨道存在一深14 mm 的单边长度为2. 4 m 前后对称的三角坑,求得机车以55 km/ h 速度经过该坑的内外轮重减载率变化曲线。最大轮重减载率见表3。可见对于原方案的机车,最大轮重减载率为37 % , 一系垂向动绕度为8. 86 mm 。当刚度变为1 MN/ m 时,最大轮重减载率为28. 6 % , 一系垂向动绕度为9. 28 mm 。轮重减载率减小了22. 7 % , 而一系垂向动绕度增加了4. 74 % 。
表3 通过三角坑的轮重减载率和一系垂向动绕度

3 结论
通过对该机车的动力学仿真计算分析,可获得以下主要结论:
(1) 一系轴端的刚度与间隙及其结构形式与横向动力学性能尤其是车体的横向振动加速度有很大影响,必须加以严格控制和改进。低刚度或无刚度区域的横向间隙尽量减小,但应增大具有一定刚度区域的间隙,避免在正常运用工况中刚性接触的出现,这样可以减小车体的横向晃动。线路试验也证明了这一点。
(2) 该机车的一系垂向刚度基本上能满足通过最不利三角坑的要求,最大轮重减载率小于62 % 的标准。但从改善垂向振动的水平来说可以适当减小,同时对轮重减载率也大为有利。以55 km/ h
通过最不利三角坑时目前的一系动绕度已基本用到10 mm 。若减小每轴刚度至1 MN/ m , 则一系垂向间隙至少应放大至15 mm , 同时阻尼可以适当降低至40~50 kNs/ m。
(3) 通过优化设计,这种结构简单可靠的机车完全可以适宜地铁工程的作业要求。
参 考 文 献
1 沈钢. 摩擦副仿真模型研究及其在机车车辆动力学中的应用. 铁道机车车辆,2002 ,(3) :3~5

