北京地铁八通线高架桥设计
【摘要】北京地铁八通线是国内第一条以预制工法为主导的轨道交通地上线路,文章简要介绍了八通线高架桥的设计特点,为今后轨道交通高架桥(特别是郊区线路的桥式) 选型提供了借鉴。
【关键词】地铁八通线 高架桥 设计
1 工程概况
地铁八通线是北京地铁一号线的东延线。八通线的起点为朝阳区四惠站(原称作八王坟站),终点为通州区土桥站, 线路全长18.964 km , 其中高架线长11.053 km , 地面线长7.911 km 。线路走向为自四惠站经四惠东站出站,下穿铁路环线,从路北斜跨京通快速路,进入快速路上、下行道之间宽20 m 的预留带,向东先后跨越高碑店路口、双桥路口、会村路口及通惠河, 到八里桥站以后,斜跨跨出京通快速路至快速路辅路南侧,再跨过京承铁路至北苑环岛右转,沿京津公路一侧向东南方向到达土桥站,其间跨越京秦铁路及通州区十多条规划路口。
2 桥上线路条件
2.1 线路平面
正线为双线, 线间距为3.8 m , 最小曲线半径为300 m 。
2.2 线路纵断面
一般地段线路纵坡不超过18 ‰,困难地段(上跨京通快速路处) 最大纵坡为23.5 ‰ 。
2.3 桥面轨道
(1) 钢轨:正线为60 kg/m 钢轨。
(2) 轨距:1 435 mm 。
(3) 线路:无缝线路。
(4) 轨道对桥跨结构的要求: 整体道床施工完毕后,由于扣件对轨道升降的调节量有限,故各种因素引起的轨面后期弹性竖向变形总量不超过30 mm 。
2.4 道床:整体道床。
3 主要技术标准
3.1 设计荷载
(1) 恒载:包括结构自重及桥面二期恒载,其中桥面二期恒载包括线路设施、电缆、栏杆等,其重量按55 kN/m 计。
(2) 列车活载:车辆按6 节编组,单列纵向最大轴重按“ 列车荷载图示”( 图1) 取值, 轻载按轴重67.5 kN 计。

图1 列车荷载图示(单位:m)
(3) 列车横向摇摆力作用在轨顶面处, 其值为4.25 kN/m。
(4) 车辆荷载的冲击系数: 1 + μ =1 + 33/(80 + 2L ),L 以m 计,除承受局部活载杆件为影响线加载长度外,其余均为桥梁跨度。
(5) 无缝线路纵向力:伸缩力T1 、挠曲力T2 、断轨力T3 均根据梁轨相互作用原理计算。
(6) 无缝线路伸缩区一般不设在桥梁上,仅在道岔区和桥梁连续长度大于120 m 的区段设置伸缩调节器,此时无缝线路纵向力按伸缩区考虑。
(7) 地震力:设计烈度8 度,水平地震系数取012 。
(8) 离心力率C = V2/(127 R ),式中: R 为曲线半径(m) , V = 80 km/h 。
3.2 建筑限界区间正线线间距为3.8 m , 桥面限界的建筑宽度为8.5 m(栏杆内至内) 。
4 桥梁结构形式
4.1 标准梁结构形式地铁八通线高架桥全长为9.7 km , 其中85 % 的桥
梁采用了预应力混凝土工型组合梁。区间标准梁的选型主要出于三方面考虑:
其一,线路西段位于朝阳区京通快速路上下行分隔带内,东段位于京津公路一侧,预制梁的运输和架设条件十分优越;
其二,梁在工厂预制,可进行标准化、规模化生产, 桥梁产品在出厂前进行严格、规范的实验和验收,品质可以得到有效保证。
其三,梁的制作可与墩台、基础施工同步进行,有利于工程组织和工期安排。从工程实际进展看,区间桥梁主体结构的施工多在半年内完成,梁的质量和工程进度令人满意。
根据工程需要,工型组合梁系列共采用五种跨度: 20 m 、22 m 、25 m 、27 m 、30 m, 布跨以25 m 梁为主,25 m 标准梁的横断面见图2。
图2 25 m 标准梁横断面(单位:mm)
工型组合梁桥面板采用现浇方式,这对整体道床钢筋钩沿线路方向的准确定位预埋十分有利,同时桥面板接缝做成等宽也使型钢伸缩缝的安装十分方便。另外,由于预制主梁为直线梁,曲线桥采用平分中矢法折线方式布置梁跨(见图3) ,后浇桥面板可沿线路走向做成曲线,桥梁外观较为和谐顺畅。
4.2 特殊节点桥梁结构形式
4.2.1 跨既有路口立交
为与京通快速路高碑店立交桥、会村立交桥孔跨一致,地铁八通线在跨越这两处路口时,均采用2 ×20 m+27 m+2×20 m 预应力混凝土箱梁。
4.2.2 通惠河桥
通惠河河道底宽40 m, 边坡为1∶2, 京通快速路通惠河桥为4×30 m 斜交工字梁,交角在45°左右。为满足行车需要,八通线通惠河桥采用了斜桥正做方式,桥式为2 ×36 m 预应力混凝土连续箱梁,中墩与京通路通惠河桥对齐,边墩立在边坡上。
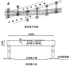
4.2.3 斜跨京通快速路桥
线路在四惠东站站后及八里桥站站后两次跨过京通快速路,因斜交角度很小,如一跨跨越,最大跨度达150 m 左右。在初步设计阶段对此节点方案进行了专门比较和讨论,认为排架墩形式跨越较为简便易行。施工设计的实施方案为:垂直于线路方向设门式排架墩,排架间距22 m, 为预制架设的钢横梁与现浇施工的钢筋混凝土立柱固结形成。钢横梁为单箱单室箱形截面,梁高为2.248 m, 宽2 m, 最大跨度为20 m(图4) , 钢横梁两侧伸出牛腿用以支撑行车主梁。行车主梁为22 m 钢—混凝土结合梁,横断面为双箱单室分离式截面,梁高为1.5 m 。钢主梁通过橡胶支座简支于钢横梁的牛腿上。此方案施工简单,可利用夜间完成吊装作业,对快速路的交通干扰较小。
4.2.4 跨京承铁路桥
跨京承铁路桥跨越5条既有铁路线和1条预留铁路线,要求跨度≥50 m, 桥下净空≥8.1 m 。从尽量减小施工对铁路运营的影响和降低中跨梁高两方面考虑,采用了35 m+50 m+35 m 钢—混凝土结合梁,梁高2.5 m 。钢梁为四片工型钢板梁,梁高2.2 m, 施工
图3 曲线上梁平面布置示意图
中钢梁沿纵向分为五段,采用单面焊接双面成型技术形成连续结构。
4.2.5 跨京秦铁路桥
该处跨京秦铁路双线,桥下净空要求≥719 m , 采用1 孔35 m 钢—混凝土结合梁,梁高2.25 m 。4.2.6 跨通州区规划道路
由于京津公路沿西北—东南走向,地铁八通线沿其而行,故通州区与之相交的东西向道路,多与八通线斜交,根据规划道路情况,选择了不同的结构形式。
图4 跨京通快速路桥的布置
外环西路桥: 45 m 钢—混凝土结合梁, 梁高2.7 m 。杨庄路桥:30 m 预应力混凝土工型组合梁,梁高210 m 。玉带河大街桥:25 m + 32 m + 25 m 预应力混凝土连续箱梁,梁高1.5 m 。京秦南侧路桥:42.964 m 钢—混凝土结合梁,梁高2.7 m 。通环西路桥、运河西大街桥、通环南路桥:40.5 m
+ 50 m + 40.5 m 预应力混凝土连续箱梁,中支点梁高3.2 m , 跨中和边支点梁高1.7 m 。通马路桥:25 m + 27 m + 25 m 预应力混凝土连续箱梁,梁高1.5 m 。九棵树大街桥:3 ×25 m 预应力混凝土连续箱梁, 梁高1.5 m 。车里路桥:25 m + 22 m + 25 m 预应力混凝土连续箱梁,梁高1.5 m 。公庄大街桥:25 m + 19 m + 25 m 预应力混凝土连续箱梁,梁高1.5 m 。规划二路桥:191.9 m 框构,顶板厚1.0 m 。
4.3 下部结构形式
工程沿线全部为第四纪地层,岩性基本为粘性土, 仅局部有砂卵砾石存在。地层属于中软场地土,建筑场地类别为Ⅲ 类,土壤最大冻结深度0.8 m 。根据地质情况,标准梁每个桥墩采用4 根<1.0 m 钻孔灌注桩,桩间距3.2 m , 选择⑧1 中粗砂层作为持力层,一般地段桩长30~35 m , 单桩承载力2 600 kN 。
标准梁桥墩一般采用T 型单柱墩,当墩柱较高时采用双柱墩,通惠河桥中墩及通州区跨部分规划道路桥梁的中墩采用圆柱墩。
5 主要材料
5.1 混凝土
预制工型梁、现浇横隔板、桥面板均采用C50 混凝土;封锚混凝土采用C40 微膨胀混凝土;盖梁、墩柱、承台采用C30 混凝土;桩基采用C25 混凝土。
5.2 钢材
预应力钢筋:采用公称直径为15.20 mm 的高强低松弛钢绞线,其技术条件应符合GB/T5224 —1995 的要求, f pk = 1 860 MPa , Ep = 1.95 ×105 MPa 。
普通钢筋: 采用Q345 、Q235 , 其技术条件应符合GB1499 —1998 和GB13013 —91 的要求。钢—混凝土结合梁主梁采用16 Mnq 钢。
6 结束语
八通线是国内第一条以预制工法为主导的轨道交通地上线路,近10 km 长的高架桥主体结构已于2002 年底顺利完工,2003 年底将迎来全线通车试运行,届时我们将进一步关注桥梁的使用情况,为今后类似工程积累更多的经验。

