地铁车站顶板支撑方案的优化
摘 要 上海轨道交通6号线源深体育中心站为地下双跨双层箱形钢筋混凝土结构,为保证双圆盾构顺利过车站,对原顶板的支撑加固方案进行了优化。将从车站底板到顶板的竖向型钢支撑改为45o斜撑,不仅增大了盾构过站期间的操作空间、减小了施工难度,而且节约了工程成本。该优化方案可为类似工程提供借鉴。
关键词 车站施工 型钢支撑 顶板跨度 斜撑 安装与拆卸
1 工程概况
上海轨道交通6号线源深体育中心站为地下双圆盾构过站车站,结构形式为双跨双层箱形钢筋混凝土结构,顶板厚500 mm,中板厚400 mm,底板厚800 mm,内衬厚600 mm;结构立柱为800 mm×500 mm,地下一层的层高为3.6 m,地下二层的层高为6.6 m。双圆盾构截面尺寸为11.12 m×6.52 m,盾构过站期间顶进基座高560 mm。
2 方案优化
2.1 原方案
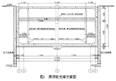
双圆盾构过站前先完成结构底板、侧墙及顶板的制作,由于结构中柱正处于盾构顶进的中心线,而结构中板底标高又与盾构在高程上相碰(6.52+0.56=7.08 m>6.6 m),因此,结构中柱及中板必须在盾构过站后再进行施工。
为保证盾构过站期间基坑及结构顶板的安全,原设计顶板支撑方案中设置了H500×200×10×18型钢,从车站底板支撑顶板,并在两侧侧墙与型钢之间的2.3 m范围内保留脚手架(见 图1),使顶板最大跨距由17.6 m减小至13.3 m。

2.2 优化理由
⑴ 型钢支撑用量较大(HM500×300×11×18型钢约94 t);
⑵ 盾构进洞及过站完成时间的推迟,型钢的租赁周期也随之加长,增加工程成本;
⑶ 型钢支撑的长细比较大,上下两端需设置纵向型钢,对各节点的焊接质量及整体稳定性要求较高;
⑷ 两侧保留的脚手架给结构施工中支撑的安装与拆卸增加风险与难度;
⑸ 型钢支撑及保留部分脚手架占车站结构的空间较大,造成盾构过站期间操作空间不
足,给盾构过站带来不便;
⑹ 在盾构过站后中板制作时,需在竖向型钢支撑位置预留较多的孔洞(孔洞间距为3.5~4 m,孔洞尺寸为700 mm×500 mm),以供型钢拆除时用,从而大大影响中板结构质量及安全;并且增加型钢拆除时的难度(每根竖向型钢支撑长9.6 m),还将造成大量型钢浪费。
2.3 优化后方案
⑴ 将竖向型钢支撑改为45o斜撑(HN500×200×10×16型钢双榀),斜撑两端与预埋在结构(侧墙、中板与顶板)内的钢板焊接固定,使盾构过站期间顶板最大跨度由原方案中的13.3 m缩小至10.4 m。
⑵ 抛撑间距为3.5~4 m,与水平钢支撑间隔布置;
⑶ 在斜撑安装之前,先制作完成部分中板(侧墙边向内1.5 m);
⑷ 在斜撑与顶板的接触位置上增加纵向暗梁,梁宽1000 mm,梁高同顶板厚度。
优化后的顶板支撑布置见图2。

3 优化方案实施
3.1 斜撑的安装
⑴ 斜撑的固定须在侧墙和部分中板的施工完成后、顶板的模板搭设之前进行。每根斜撑的平面位置、切割长度与角度均通过计算来确定;
⑵ 斜撑的下端搁置在中板与侧墙拐角处,并与预埋板(450 mm×500 mm,锚固筋采用4φ25;)满焊;
⑶ 斜撑的上端与顶板预埋板(900 mm×500 mm,锚固筋采用10φ25)焊接,预埋板在顶板模板铺设前固定位置,并保证其底面与设计顶板的底面相一致;
⑷ 斜撑与顶板的预埋板焊接牢固后,经各方检查合格,方可进行顶板的模板、钢筋、混凝土浇筑施工。
⑸ 每根型钢重985 kg,在顶板混凝土浇筑之前,必须将斜撑与顶板的脚手架体系进行联系与固定,保证型钢斜撑的稳定与安全。
图3 为斜撑的加固截面图。

3.2 实施效果
在结构顶板混凝土强度达到设计要求后,拆除满堂脚手架。在盾构过站之前,对结构顶板及侧墙进行检查,发现顶板及侧墙的裂缝及渗水较少,完全满足车站设计的防水要求;在盾构过站过程中,每2周对车站基坑进行监测,监测报告显示,车站基坑变形基本稳定。
3.3 立柱及中板施工
为方便下一层结构立柱的混凝土浇筑及保证浇筑质量,在顶板施工过程中,将f150钢管竖向预埋在设计立柱的中心位置上;在车站底板及顶板施工中,按设计要求预埋钢筋接驳器、钢筋及型钢斜撑拆除预埋钢板。待盾构过站后,先施工下二层结构立柱,达到设计要求强度后进行中板施工,然后施工下一层结构立柱(经顶板预留钢管浇筑立柱混凝土,充分振捣,保证立柱质量),待中板及立柱混凝土强度达到要求后,方可拆除型钢斜撑。
3.4 斜撑拆卸
⑴ 在顶板拆支撑预埋板上焊制吊钩;
⑵ 用钢丝绳经顶板吊钩将型钢斜撑悬挂稳定住;
⑶ 将型钢斜撑与上下端的预埋板割离;
⑷ 以中板与侧墙的拐角点为支点,将型钢斜撑旋转,轻放至中板面上,并将其从结构内部吊出。
在拆卸过程中,保证型钢的轻拉、轻放,避免给结构造成较大的撞击及损伤。
4 结束语
为了保证盾构安全过站,对大跨度顶板所采用的斜撑方案是切实可行的。斜撑的安装及拆除较方便;在保证安全的情况下,节省了大量的型钢(较原方案节省58 t),简化了施工工艺,有效地缩短了工期,节约工程成本,取得了一定的经济效益。
该斜撑方案可供类似工程借鉴,不足之处请不吝指正。

