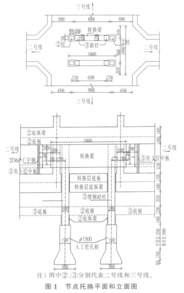
地铁车站结构转换中的已有结构物变形控制技术摘要:介绍广州市轨道交通三号线客村站转换层结构转换施工中控制已有结构变形的技术措施,说明在结构转换中变形控制是整个结构托换中的关键问题。关键词:转换层;结构转换;变形控制1前言 城市轨道交通因具有运量大、快速、正点、低能耗、少污染、乘坐舒适方便等优点,被称为“绿色交通”,但城市轨道交通只有在形成基本网络的情况下才能充分发挥其应有的功效。因此在路网的交叉点和各线路车站之间必须设置相互联通的换乘设施,这种相互连通的换乘设施就是所谓的转换层。通常情况下转换层是在前一条线路施工时就一起施工完成并预留了与交叉路网的接口部分,但如果受线路总体调整和周边环境的限制,将可能导致转换层的重新施作,而重新施作转换层中往往需首先进行荷载转移,也称为结构转换,必须解决承载力和变形控制两方面的问题,而变形控制尤为关键。本文通过广州市轨道交通三号线客村站转换层结构转换中变形控制实例,阐述变形控制在整个结构托换中的若干关键问题。2工程概况 广州市轨道交通三号线客村站是广州市轨道交通网中二号线与三号线的换乘车站,设计为地下4层车站,总体呈南北走向,与轨道交通二号线客村站呈十字交叉状。二号线客村站为地下2层车站,施工时在车站结构以下部位预留了与三号线的换乘转换平台(原转换层),长18m,宽19.1m,净高4.1m,底板厚1.2m,底纵梁下翻1.4m。 受车站型式布置的影响,为使二、三号线换乘客流顺畅,三号线施工时要将已施工的二、三号线原转换层底板全部凿除,重新施作二、三号线换乘转换平台(位于三号线负3层位置)。又由于三号线线路的调整和车站站台的控制,造成二号线在节点段的中柱与三号线的中柱发生错位(两柱中心相距1.25m);为了将二号线中柱的荷载转移到三号线中柱上,必须在现二、三号线转换层进行荷载转移(结构转换),在结构转换完成后,重新施作新的转换层。本工程的特点是施工场地狭小,材料运输困难,工期紧,对既有的二号线变形控制要求相当高。3结构转换形式的确定 结构转换形式通常有板式、梁板式、梁式、拱式、桁架式等,其中梁式转换结构具有结构合理、受力明确、可靠、造价较低、布置灵活、施工方便等优点,可以通过结构柱在柱上设置大梁直接进行结构托换,且在托换结构体系完工后进行原柱与底板的分离也较方便,易于施工,符合本工程的施工条件,因此本工程结构转换选择梁式转换结构。为保证承载力的要求,桩型采用质量较有保证的人工挖孔桩,桩身采用钢筋混凝土型钢柱。 整个结构托换的主要施工工序为:首先在三号线新柱位进行人工挖孔桩及三号线型钢柱的施工,再在型钢柱进行转换大梁施工,最后截断节点段中柱,将二号线中柱荷载通过转换大梁转移到三号线中柱上。人工挖孔桩进入三号线底板以下8.1m(中风化岩)或9.6m(强风化岩)处,在转换层底板和转换层底纵梁以上采用边长1.0m的方桩,在转换层底板和转换层底纵梁附近扩大为f1.5m圆孔,在端头附近扩大为f3.0m圆孔。型钢柱采用2I50C工字钢,混凝土强度等级为C45;转换大梁长度为10.6m,结构采取变截面,尺寸为(1200~1400)×3000,转换梁与老柱采用植筋、齿槽和粘结剂并以水平预应力索箍抱紧进行连接。节点托换施工图如图1所示。

4施工中的变形控制技术措施 对已建建筑物进行基础托换和转换层施工时,上部结构将产生一定程度的不均匀沉降,又由于钢筋混凝土结构在长期荷载作用下具有徐变性,托换结构既要考虑原建筑物荷载转移到托换结构阶段产生的短期变形,又必须考虑托换完成后使用阶段的长期变形,因此整个托换结构的施工重点在于被托换工程建筑物的沉降变形控制方面。托换后的建筑物沉降变形容许值见表1。

在整个结构托换施工过程中,为控制被托换工程建筑物的沉降变形,除按设计要求采取人工凿除混凝土、人工 挖孔桩对角施工等外,我们主要采取了以下技术处理措施以确保被托换工程建筑物的沉降变形得到有效控制。 ⑴对被托换柱进行临时支撑加固 由于施工新的三号线中柱时,必须对新柱部位的原转换层底板和底纵梁进行凿除,造成其结构受力状态的破坏,为了控制上部结构的变形,必须对被托换柱进行临时支撑加固。每条被托换柱采用4条临时支撑加固,临时支撑采用2Ⅰ36C工字钢焊接组合,为使支撑能紧贴二号线底板,在整个施工过程中必须对支撑施加预应力,预应力张拉并非一个单纯的自由反拱过程,而是一个复杂条件下的微变形反拱过程,同时也是一个被托换桩基向转换桩基转移部分荷载的过程,因此临时支撑必须一直贯穿于整个托换施工过程。 ⑵转换层的降水处理 根据设计文件的要求,施工前必须打设降水孔进行降水,防止积水对基坑的浸泡超成基岩软化,使桩基承载力降低。根据地质勘察资料,在转换层以下岩层为强风化和中等风化带,虽然岩层中含有基岩裂隙水,但基岩为泥质、铁质胶结,风化裂隙和构造裂隙不甚发育,且距离补给源珠江水较远,基岩裂隙水的赋存和运动条件差,含水量较小,渗透系数仅为0.013~0.037md,属弱透水层,因此我们认为人工挖孔桩施工过程实际上也是一个降水过程,及时排除人工挖孔桩孔内的积水,可保证桩基承载力不会减小,因此取消了降水孔降水,而采用人工挖孔桩间接降水。 ⑶托换桩的沉降量控制 虽然人工挖孔桩的桩底较易清理,质量较易保证,但考虑到若桩的沉降量控制不好,整个被托换工程建筑物的沉降变形将难以控制,因此在桩底预埋2根注浆管,在严格控制孔底岩层和孔底沉渣的基础上,待桩身终凝后对桩底可能存在的少量沉渣作补救性压浆。 ⑷托换结构的新旧混凝土的联接处理 新旧混凝土联接处理的好坏,直接关系到结构托换的成败,为确保被托换柱与转换梁的新旧混凝土结合紧密,首先在被托换柱与转换梁交接的柱体表面设置齿槽,齿槽为倒梯形凹槽,深35mm,底宽35mm,面宽105mm,间距105mm,通过人工开凿,开凿时将柱上的混凝土棱角打掉,并将二号线底板与转换梁结合面进行凿毛。其次在界面四周增设箍筋并用TN粘结剂对被托换柱和转换梁顶及二号线底板进行植筋以加强联接。最后在浇筑新混凝土前45min内在界面喷涂以环氧为主剂的LB界面处理剂。为保证转换梁结合面的粘接,混凝土浇筑均在夜间进行,且在浇筑过程中对转换梁上方实行交通封闭,待转换梁浇筑完成并达到一定强度后方可恢复地面交通。 ⑸转换梁顶的空洞处理 由于转换梁与二号线底板相接,虽然施工中采取了结合面凿毛等措施,但由于结构所处的特殊位置等原因,造成梁顶新旧混凝土联接处出现较严重的空洞和裂缝缺陷。采取的处理方法是首先通过预埋的管道注入水泥砂浆(1∶0.5~1∶1)充塞空洞,最后将环氧树脂通过一定压力注入混凝土裂缝中,经渗透、固化达到修补裂缝的目的。 ⑹托换基础与建筑物分离的施工按设计文件要求,在托换结构施工完成后,必须将原转换层柱与建筑物进行分离,将二号线中柱的荷载转移到三号线中柱上,原转换层柱与建筑物进行分离是对整个托换结构的决定性考验,分离过程必须进行严格监控,并制定了相应的报警值,即:柱位沉降差<8mm,转换梁挠度值<5mm。在分离过程中对柱逐根进行截断,先凿除钢筋保护层再截断钢筋。5信息化施工 信息化施工已成为建筑施工中的重要组成部分,通过对施工状况的监测取得监测数据,及时进行整理和分析,并对监测结果进行回归分析,预测结构的安全状况,以信息反馈的形式来指导施工,改进施工方案,采取必要的技术措施以确保施工安全。 针对本次结构托换的施工特点和二号线客村站的结构特点,认为结构沉降及平面变形为主要观测项目,在二号线站厅层、站台层、转换层分别布置了监测点。其中转换层监测点布置在4条被托换柱、转换层底板、转换层侧墙、二号线底板(纵梁)底上;二号线站厅层、站台层监测点分别布置在的底(中)板及柱位上,监测点共布置约50个,在施工期间每天监测一次。在被托换柱与建筑物分离时,在转换梁上进行了应变监测。6结语 6.1结构托换完成后,最大沉降量仅为7mm,说明施工过程中采取的技术措施是有效的,既保证了托换桩的质量,又有效地控制了建筑物的变形,变形控制成为托换工程中的关键问题。 6.2二号线、三号线首通段开通至今,转换层未发生沉降和裂缝,说明结构托换是成功的。 6.3人工挖孔桩在地质条件允许的条件下,应用于工作面小、材料运输困难的托换工程中,较其它桩型更具有明显的优势。6.4必须加强监控量测在施工中的力度,通过监测反馈的信息来指导施工。 6.5本文介绍的方法对同类问题的工程实施有着积极的借鉴意义。参考文献[1]夏明耀,曾进伦.地下工程设计施工手册[M].北京:中国建筑工业出版社,1999[2]GB50157-92地下铁道设计规范[S][3]GB50010-2002混凝土结构设计规范[S][4]GB50007-2002建筑地基基础设计规范[S]