地铁车站换乘段深基坑工程盖挖法施工有限元法模拟分析【摘要】以某地铁车站换乘段基坑工程盖挖法施工为实例,采用岩土有限元分析软件PLAXIS进行有限元模拟,考虑了施工工况、土体参数等差异对支护结构位移计算结果的影响,再与实际的监测结果进行比较,得到盖挖法施工的风险因素与阶段,希冀能为类似工程提供一定的经验参考。【关键词】地铁车站深基坑盖挖法施工PLAXIS有限元分析软件模拟计算0 引言 上海地区的地铁车站主体结构深基坑工程多采用以地下连续墙为围护、钢筋混凝土或钢管支撑作为支护而形成的支挡体系方案。但在某些地铁车站深基坑工程施工过程中,由于地面交通组织或其它原因的需要采用了对地面交通干扰较少的盖挖法(盖挖顺作或者盖挖逆作),即先浇筑地下结构的部分顶板,在顶板保护下,自上而下分部开挖、支撑和浇筑结构内衬。因此围护结构(地下连续墙)和支护结构(支撑与结构梁板)的内力特性与变形位移由于空间形状、土层特性、施工工况、周边环境等不同而产生差异。本文以某地铁车站换乘段基坑工程盖挖法施工为实例,采用岩土有限元分析软件PLAXIS进行有限元模拟,考虑了施工工况、土体参数等差异对支护结构位移计算结果的影响,再与实际的监测结果进行比较,得到盖挖法施工的风险因素与阶段,希冀能为类似工程提供一定的经验参考。1 工程概况 本地铁车站工程标准段及端头井为地下2层双柱三跨结构,中间换乘段为地下3层结构(D区)。其主体结构基坑工程共分为两个阶段施工:第一阶段主要进行A区端头井和B区(端头井和标准段)施工;第二阶段主要进行D区换乘段以及C区标准段施工,C区与D区间设置非完全的地下连续墙(图1)。

D区换乘段的基坑工程以及围护结构设计方案的参数:换乘段基坑开挖深度约24.07 m,D区换乘段南北地下连续墙为1 000 mm厚,深度为40 m,入土比约为0.667;东西两侧临时封堵墙厚度为800 mm厚,深度为34 m。 根据岩土勘察报告土层有关技术参数,工程地质条件如表1。

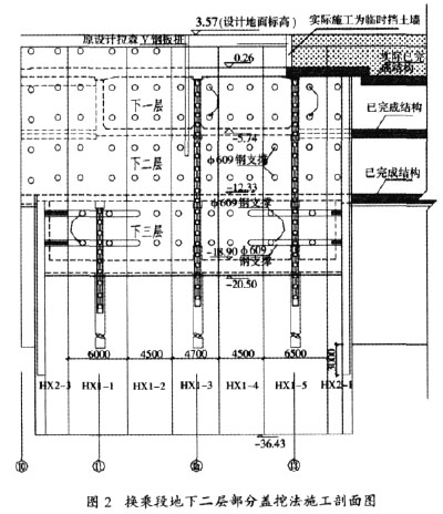
本工程地下水主要有浅部土层中的潜水,及深部粉性土、砂土层中的承压水。上海年平均水位埋深在0.5~0.7 m,低水位埋深1.50 m。现场测得的地下水位埋深一般在1.15~1.25 m之间。2 盖挖法施工过程2.1 换乘段基坑施工环境 换乘段13轴线~14轴线顶板以及B区顶板结构已经完成(原设计中换乘段顶板应完成12X轴,~14轴,但由于交通组织等原因变更施工范围,浅部临时围护结构亦由拉森钢板桩改为临时挡土墙),并且完成覆土回填;B区(14轴地下连续墙以西)中板及底板结构已经施工完成(图2);⑨~⑩轴线之间有24孔信息管线穿越基坑并实施原位保护。

2.2 换乘段施工工况 (1)换乘段10~13轴为明开挖法施工下二层板以上部分,13~14轴为盖挖法施工下二层板以上部分,共设置5道φ609×16 mm钢管支撑。 (2)浇筑换乘段下二层部分板、梁结构(如图3所示),待下二层板及C区相邻标准段底板达到设计强度70%时采用盖挖法施工下三层部分。

(3)开挖至第六道支撑底面标高,并安装第6道φ609×16 mm钢管支撑。 (4)开挖至第七道支撑底面标高,并将第6道φ609×16 mm钢管对直撑移位至第七道支撑位置。 (5)开挖至基坑底面设计标高,并依次完成换乘段底板侧墙以及地下一层、二层部分未完成的结构施工。3 有限单元法模拟分析 本文拟采用荷兰岩土分析软件PLAXIS程序中的二维分析软件包对本工程施工过程按照工况进行模拟,并分析了模拟计算与实际结果的比较情况、盖挖施工与明挖法施工的比较情况。为了模拟最深开挖工况情况,将模拟断面选取在B轴或G轴线处。3.1 PLAXIS模型建立与参数选取3.1.1 土体本构模型 土体采用摩尔-库仑(Mohr-Coulomb)模型,在PLAXIS程序当中Mohr-Coulomb模型,共需要5个参数杨氏模量E、泊桑比ν、内摩擦角φ、内聚力c、剪胀角ψ。在真实土体中,刚度在很大程度上依赖于应力水平,即刚度通常随着深度的增加而增加,PLAXIS引入高级参数Eincrement用来反映刚度随着深度的增加而增加的,它表示杨氏模量在每个单位深度上的增加量(单位:应力/单位深度)。Eactual=Eref+(yref-y)Eincement(y<yref) 内摩擦角在很大程度上决定了抗剪强度,且摩擦角取值较大,会显著增加塑性计算量,计算时间的增加量与摩擦角的大小呈某种指数关系。3.1.2 单元模拟 数值模拟中土体采用平面应变15节点2-D等参单元(PLAXIS程序中分为6节点、15节点两种单元);围护墙采用梁单元来模拟;支撑结构按照抗压构件来考虑;土与结构按特殊接触面单元处理(图4)。

PLAXIS程序中用Rinter弹塑性模型中模拟土-结构相互作用的界面的性状,若φi和ci分别为界面的摩擦角和内聚力(粘着力),按如下规则由相应的岩土性质和强度折减因子,计算得出界面性质:

在缺少给定情况的资料时,可以根据经验假设Rinter为2/3。3.1.3 参数选取 土体单元的相关参数可根据岩土勘察报告以及地区经验进行选取,围护及支护结构相关参数如表2:

3.2 有限单元模拟计算结果3.2.1 数值分析与监测结果比较 根据基坑变形控制保护等级标准一级的要求,基坑围护墙最大水平位移量应≤0.3%H,而当时的实测结果表明,基坑围护墙最大水平位移在允许范围内。同时,根据现场施工过程中的环境监测数据资料分析,断面的最大变形值较大。表明有限元模拟的结果与实际情况有一定的理论差距。根据现场施工情况分析,在施工第一、二层土方过程中由于支撑轴力未能施加完全到位,曾出现当次最大变化量为4.27 mm(超过单次监测报警值),从而出现实际监测最大变形超过理论计算值(图6)。

3.2.2 明挖法施工模拟 如考虑下三层采用明挖法施工,共需设置7道φ609×16 mm钢管支撑,通过有限元模拟计算其土体及地下连续墙体的水平位移情况明显大于盖挖法施工模拟计算的结果,且对周边土体的影响范围亦有显著增大(图7)。

4 结语 (1)采用PLAXIS程序进行基坑工程有限元模拟分析,可以得到较为真实可靠的数据结果,其中土体的杨氏模量对计算结果影响较大,其取值应根据岩土勘察报告并考虑土体扰动影响结合地区经验选取。 (2)深基坑工程施工如采用盖挖法施工可以减少支撑数量,由于结构板梁轴向抗压刚度EA值较大,能够有效地限制围护结构水平位移。 (3)基坑底部隆起值随基坑开挖深度的增加而增加,且由于围护结构与土体的相互作用,基坑边缘处的隆起量明显小于基坑中部。参考文献[1]曾进伦,王聿,赖允瑾.地下工程施工技术.北京:高等教育出版社,2001.[2]耿永常,尚文红,安桂香.逆作地下连续墙结构受力特性分析.低温建筑技术,2006,l5:69-71.